Bolkafstraat 11  's-Gravendeel

€ 895.000 k.k.

Omschrijving

Aan de rand van de dorpskern, waar zelden een huis vrijkomt, ligt deze verrassend ruime vrijstaande woning met inpandige praktijkruimte, garage en mooie tuin met overkapping.
Het oorspronkelijke bouwjaar is 1973, maar vanaf 2014 is het huis gemoderniseerd en vergroot op de bovenverdieping. Het resultaat is een eigentijds afgewerkt, royaal (familie)huis met veel mogelijkheden.

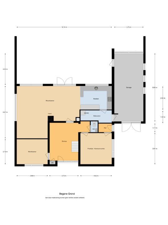
De indeling is globaal als volgt: entree met ruime hal (waar genoeg ruimte is voor o.a. een garderobekast), de trapopgang en toegang tot de verschillende vertrekken.
Aan de straatkant liggen de salon/praktijkruimte en een werkkamer. De salon is eveneens toegankelijk via een zij-ingang, wat zorgt voor extra privacy.
Uiteraard kunnen deze kamers op de begane grond ook als slaapkamers worden gebruikt.
De toiletruimte is ingericht met een wandcloset en modern tegelwerk.

Aan de tuinzijde liggen de woonkamer en de open keuken. In de woonkamer zorgt de (hoek)haard voor gezelligheid en comfortabele warmte. Openslaande deuren geven toegang tot de tuin.
De keuken heeft een uitgebreide U-vormige inrichting en is uitgevoerd in hoogglans met een natuurstenen aanrechtblad en complete inbouwapparatuur.
De praktische bijkeuken biedt plaats aan o.a. de wasapparatuur en heeft ook een deur naar de inpandige garage. Deze is bijna 9 meter lang!

Het woongedeelte op de begane grond is afgewerkt met een mooie natuurstenen vloer, met daaronder vloerverwarming.

Een trappartij met vide leidt naar de eerste verdieping.
Hier zijn drie prima slaapkamers, die allemaal iets extra's hebben. De master bedroom heeft een grote inloopkast (met dakraam) en een eigen balkon. Slaapkamer twee heeft een mooie grote dakkapel, die zorgt voor extra licht en ruimte. Slaapkamer drie heeft eveneens een eigen balkon.

De (vergrote) badkamer is een plaatje en voldoet aan alle wensen met een ligbad, inloopdouche, designradiator, dubbel wastafelmeubel, een toilet én een infrarood sauna. De vloerverwarming en het raam dat ventileren met frisse buitenlucht mogelijk maakt, completeren dit geheel.

Op de overloop is een grote bergruimte, met daarin tevens de cv-ketel die in 2024 is vernieuwd.

Aan verduurzaming is aandacht besteed middels o.a. dakisolatie, muurisolatie en dubbel glas. Ook zijn elektrische rolluiken en screens aangebracht.
Energielabel B is van toepassing.

De tuin rondom de woning bestaat o.a. uit een gedeelte dat direct aansluit op de woonkamer. Dit is een beschutte tuin met een terras, een stoere overkapping met berging en plaats voor een hot tub (ter overname).

Op de oprit voor de garage is ruimte voor meerdere auto's op eigen terrein.
De achtertuin heeft een gunstige ligging op het westen. Het perceel sluit aan op een brede groenstrook, wat het gevoel van vrijheid en weidsheid versterkt.

Al met al een prachtig huis, geschikt voor een gezin of praktijk aan huis.
Prettige ligging in het dorp, met alle voorzieningen op korte afstand; maar ook een locatie met veel vrijheid.
Het geheel staat op een perceel van 547 m² grond. Begin september 2026 kan de oplevering plaatsvinden.

Interesse?
Kom dan gerust vrijblijvend kijken. Bel of mail naar MarQuis Makelaars & Taxateurs voor het maken van een afspraak voor een bezichtiging. Welkom!

Documenten

Kenmerken

Overdracht

Vraagprijs
€ 895.000 k.k.
Status
Verkocht onder voorbehoud
Oplevering
In overleg

Bouw

Woonhuis
Eengezinswoning, Vrijstaande woning
Soort bouw
Bestaande bouw
Bouwjaar
1973
Onderhoud binnen
Goed
Onderhoud buiten
Goed

Oppervlakten en inhoud

Oppervlakte
199m²
Perceel
547m²
Overig
32m²
Inhoud
882m³

Indeling

Kamers
6
Slaapkamers
3
Badkamers
1
Verdiepingen
2
Voorzieningen
Mechanische ventilatie, Buitenzonwering, Rookkanaal

Buitenruimte

Ligging
In woonwijk
Balkon
Ja
Tuin
Tuin rondom
Schuur
Vrijstaand hout

Energie

Energielabel
B
Isolatie
Dakisolatie, Muurisolatie, Dubbel glas
Warm water
C.V.-ketel, Elektrische boiler eigendom
Verwarming
C.V.-ketel, Open haard, Vloerverwarming gedeeltelijk
Ketel
Remeha (2024, Combi-ketel, Eigendom)

Garage

Soort garage
Inpandig
Capaciteit
2

Locatie

[ { "address": "Bolkafstraat 11", "zipCode": "3295 TA", "city": "'s-Gravendeel" } ]

Plattegronden

Interesse? Vraag hier een bezichtiging aan.

Deze woning is Verkocht onder voorbehoud

Uw bericht is naar ons verzonden. Wij nemen zo snel mogelijk contact met u op.

Er is iets mis gegaan met het versturen van het formulier.
Controleer of u alle velden (goed) heeft ingevoerd en probeer het nog een keer.


Heeft u een vraag?

Wij zijn maandag t/m vrijdag bereikbaar van 9:00 tot 17:15 uur

Bel 078 673 7244