Heeremanstraat 1  's-Gravendeel

Verkocht

Omschrijving

Hoekwoning met zijtuin, achtertuin en berging, gelegen in een rustige woonwijk vlakbij de dorpskern.

Deze in 1958 gebouwde woning staat op een perceel van 133 m² grond.

De woning is uitgevoerd met dubbele beglazing, deels in kunststof ramen en kozijnen. Aan de achterkant is ook een elektrisch rolluik aangebracht.

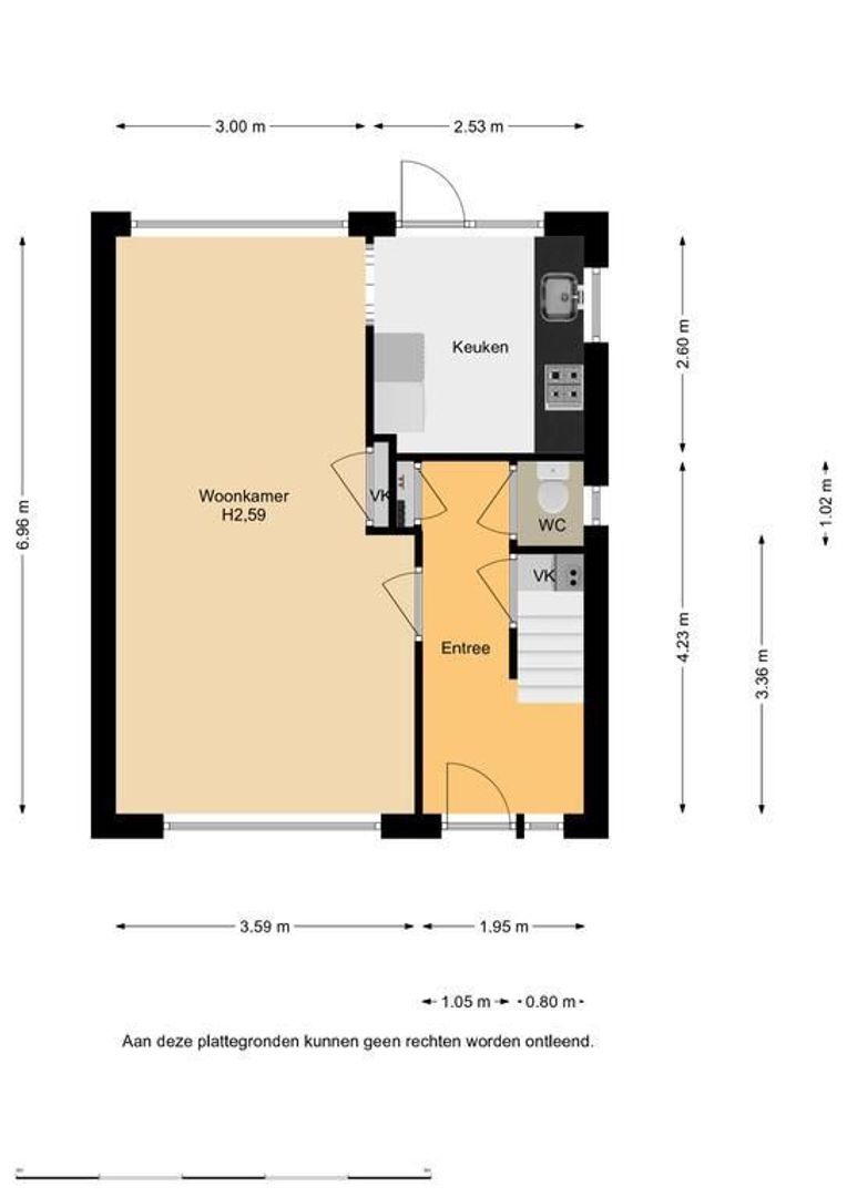
De indeling is als volgt: entree, hal met trapopgang met trapkast en de opstelplaats voor de cv-ketel, meterkast en toiletruimte.
Doorzon woonkamer met grote ramen waardoor het heerlijk licht is.
Halfopen keuken met eenvoudige inrichting, voorzien van een gaskookplaat, oven en afzuigkap. Het zijraam zorgt ook hier voor veel licht.

Op de eerste verdieping zijn drie slaapkamers, de badkamer en een vaste kast.
De slaapkamer aan de achterkant heeft een klein balkon.

De badkamer is volledig betegeld en ingericht met een wastafelmeubel en inloopdouche.

De wanden, vloeren en plafonds op de verdieping zijn in 2019 nog opgeknapt/vernieuwd.

De tweede verdieping is met een schuiftrap bereikbaar. Hier bevindt zich nu een grote bergruimte.
Bij diverse woningen in de wijk is inmiddels een dakopbouw in combinatie met een vaste trap gemaakt, wat dan een mogelijkheid biedt om een extra slaapkamer te maken.

De achtertuin ligt gunstig ten opzichte van de zon en de schutting is recent nog vernieuwd.
In de tuin staat een stenen berging.

Leuk huis dat verder naar eigen smaak kan worden afgewerkt.
De oplevering kan januari 2023 plaatsvinden.

Nieuwsgierig?
Maak dan snel een afspraak voor een vrijblijvende bezichtiging met MarQuis makelaars & taxateurs. U bent van harte welkom!

Kadastrale gegevens:
Gemeente ‘s-Gravendeel, sectie F nummer 3903, groot 133 m²
Volle eigendom
Tuinligging: zuidoost

Maatvoering (indicatief):
Gebruiksoppervlakte wonen : circa 78 m²
Gebruiksoppervlakte zolder : circa 8 m²
Gebruiksoppervlakte balkon : circa 2 m²
Gebruiksoppervlakte berging : circa 7 m²

Bijzonderheden:
Vaillant combi ketel 2015
De vloer van de eerste verdieping is grotendeels geïsoleerd
Schutting recent vernieuwd

Oplevering:
De oplevering vindt bij voorkeur plaats januari 2023.

Kenmerken

Overdracht

Status
Verkocht
Oplevering
In overleg

Bouw

Woonhuis
Eengezinswoning, Hoekwoning
Soort bouw
Bestaande bouw
Bouwjaar
1958
Onderhoud binnen
Goed
Onderhoud buiten
Goed

Oppervlakten en inhoud

Oppervlakte
78m²
Perceel
133m²
Overig
8m²
Inhoud
265m³

Indeling

Kamers
4
Slaapkamers
3
Badkamers
1
Verdiepingen
3
Voorzieningen
Rolluiken, Dakraam

Buitenruimte

Ligging
In woonwijk
Balkon
Ja
Tuin
Achtertuin, Voortuin, Zijtuin
Achtertuin
Zuidoost, 36m², 900×400cm
Schuur
Vrijstaand steen

Energie

Energielabel
E
Isolatie
Dubbel glas
Warm water
C.V.-ketel
Verwarming
C.V.-ketel
Ketel
Vaillant (2015, Combi-ketel, Eigendom)

Locatie

[ { "address": "Heeremanstraat 1", "zipCode": "3295 XK", "city": "'s-Gravendeel" } ]