Hendrik Hamerstraat 79  's-Gravendeel

Verkocht

Omschrijving

Ruime drive-in-woning met garage, balkon en tuin met mooie overkapping, gelegen in het centrum van het dorp.

Deze in 1974 gebouwde splitlevelwoning kenmerkt zich door de speelse indeling en de zogenaamde halve tussenverdiepingen in het huis, waardoor het nét iets anders is dan standaard. Leuk!

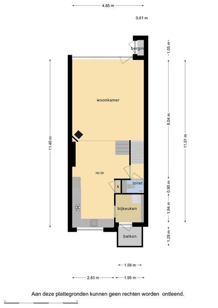
De indeling is als volgt: entree met meterkast en toegang tot de inpandige garage (die in gebruik is als berging en hobbyruimte).
Hal met garderoberuimte, vaste kast en trapopgang.

Mooie vierkante woonkamer met gezellige schouw met gaskachel en deur naar de tuin. De leefkeuken ligt een aantal treden hoger en staat in open verbinding met de woonkamer. De eigentijdse wandopstelling is geplaatst in 2016 en is uitgevoerd met een koel-vriescombinatie, 4-pits gaskookplaat, oven, afzuigschouw en vaatwasser (2020). Ook is er een vaste kast in de keuken.
Een praktische bijkeuken -met de aansluitingen voor de wasapparatuur en vaatwasser- geeft toegang tot een klein balkon.

De woonverdieping is afgewerkt met een plavuizen vloer met comfortabele vloerverwarming.
In de tussenhal met trap is ook de toiletruimte met een wandcloset en fonteinbakje.

Op de volgende woonlagen bevinden zich twee grote slaapkamers (oorspronkelijk drie), waarvan 1 met airconditioning, een kast met de cv-ketel (Vaillant 2020) op de tussenliggende overloop en een prima badkamer. Deze is ingericht met een inloopdouche, wastafelmeubel, wandtoilet en designradiator.

Op de bovenste verdieping is nog een grote slaapkamer. Deze is uitgevoerd met airconditioning. De kamer geeft toegang tot een ruim dakterras/balkon. Dit is een heerlijk plekje om even beschut te genieten van de ochtend- of avondzon.

De tuin ligt op het zuidoosten. Hierin staat een mooie grote overkapping van hout.

De gehele woning is uitgevoerd met dubbel glas, gedeeltelijk in kunststof ramen. Aan de achtergevel is een elektrisch zonnescherm aangebracht.

De dakbedekking op de woning is recent vernieuwd. Ook is in het verleden de gevel gereinigd en opnieuw gevoegd.

Al met al een heerlijk huis met veel ruimte en gelegen op loopafstand van winkels en voorzieningen.

Nieuwsgierig? Maak dan snel een afspraak voor een vrijblijvende bezichtiging met MarQuis makelaars & taxateurs. U bent van harte welkom!

Kadastrale gegevens:
Gemeente ‘s-Gravendeel, sectie F nummer 3462, groot 121 m²
Tuinligging: zuidoost
Volle eigendom

Maatvoering (indicatief):
Gebruiksoppervlakte wonen : circa 134 m²
Gebruiksopp. garage : circa 16 m²
Gebruiksopp. balkons : circa 12 m²
Gebruiksopp. overkapping : circa 13 m²
Inhoud woning : circa 530 m³

Bijzonderheden:
Begane grondvloer type Kwaaitaal, gerepareerd met garantie
Dakbedekking vernieuwd in 2020
Groepenkast vernieuwd in 2013
Vaillant combi ketel 2020
Gashaard in woonkamer
Nieuwe vloerverwarmingspomp in 2019

Oplevering:
De oplevering kan in het tweede kwartaal van 2022 plaatsvinden

Kenmerken

Overdracht

Status
Verkocht
Oplevering
In overleg

Bouw

Woonhuis
Eengezinswoning, Tussenwoning, Split-level woning
Soort bouw
Bestaande bouw
Onderhoud binnen
Goed
Onderhoud buiten
Goed

Oppervlakten en inhoud

Oppervlakte
134m²
Perceel
121m²
Overig
16m²
Inhoud
530m³

Indeling

Kamers
5
Slaapkamers
3
Badkamers
1
Verdiepingen
4
Voorzieningen
Buitenzonwering, Airconditioning

Buitenruimte

Ligging
In centrum, In woonwijk
Balkon
Ja
Tuin
Achtertuin
Achtertuin
Zuidoost, 51m², 510×1000cm
Schuur
Aangebouwd steen

Energie

Energielabel
B
Isolatie
Dubbel glas
Warm water
C.V.-ketel
Verwarming
C.V.-ketel, Vloerverwarming gedeeltelijk, Gashaard
Ketel
Vaillant (2020, Combi-ketel, Eigendom)

Garage

Soort garage
Inpandig
Capaciteit
1

Locatie

[ { "address": "Hendrik Hamerstraat 79", "zipCode": "3295 CG", "city": "'s-Gravendeel" } ]