Hendrik Hamerstraat 87  's-Gravendeel

Verkocht

Omschrijving

Ruime drive-in-woning met garage, balkon en tuin, gelegen in het centrum van het dorp.

Deze in 1976 gebouwde splitlevel (eind)woning kenmerkt zich door de speelse indeling en de zogenaamde halve tussenverdiepingen in het huis, waardoor het nét iets anders is dan standaard. Leuk!

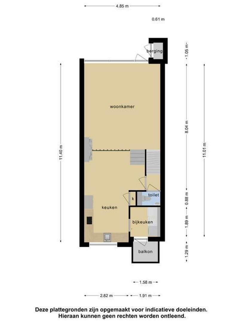
De indeling is als volgt: entree met meterkast en toegang tot de inpandige garage. Hal met garderoberuimte, vaste kast en trapopgang.

Mooie vierkante woonkamer met gezellige schouw met houtkachel en deur naar de tuin. De leefkeuken ligt een aantal treden hoger en staat in open verbinding met de woonkamer. De eigentijdse wandopstelling is voorzien van een koelkast, combi-oven, inductiekookplaat en een afzuigkap. Ook is er een vaste kast in de keuken.
Een praktische bijkeuken -met de aansluitingen voor de wasapparatuur en vaatwasser- geeft toegang tot een klein balkon.

Op de volgende woonlaag bevinden zich twee slaapkamers aan de tuinkant en een kast met de cv-ketel (Remeha 2017) op de overloop.

Dan zijn op het volgende niveau een grote slaapkamer en een moderne badkamer. Deze is voorzien van elektrische vloerverwarming en ingericht met een inloopdouche met regen- en massagedouche, een dubbel wastafelmeubel, een tweede toilet en een verwarmde spiegel.

Tot slot is er op de bovenste verdieping nog een ruime hobbykamer/ slaapkamer (waarin twee leuke slaapnissen gemaakt zijn) met toegang tot een ruim dakterras/balkon. Dit is een heerlijk plekje om even beschut te genieten van de ochtend- of avondzon.
Boven deze verdieping bevindt zich nog een kruipzolder.

De vloeren zijn afgewerkt met plavuizen met vloerverwarming en laminaat. De trap is met pvc bekleed.

De tuin ligt op het zuidoosten. Hierin staat een mooie overkapping van Douglashout. Aan de achtergevel is een elektrisch zonnescherm aangebracht.

De woning is goed geïsoleerd. Behalve dubbel glas, is ook het dak extra geïsoleerd, is spouwmuurisolatie aangebracht en is de kruipruimte voorzien van zogenaamde chips.
Verder is meldenswaardig dat in 2020 de bitumen dakbedekking is vervangen en ook de goten zijn vernieuwd.

Al met al een heerlijk huis met veel ruimte en gelegen op loopafstand van winkels en voorzieningen.

Nieuwsgierig? Maak dan snel een afspraak voor een vrijblijvende bezichtiging met MarQuis makelaars & taxateurs. U bent van harte welkom!

Kadastrale gegevens:
Gemeente ‘s-Gravendeel, sectie F nummer 3466, groot 125 m²
Tuinligging: zuidoost
Volle eigendom

Maatvoering (indicatief):
Gebruiksoppervlakte wonen : circa 133 m²
Gebruiksopp. garage : circa 17 m²
Gebruiksopp. balkons : circa 14 m²
Inhoud woning : circa 530 m³

Bijzonderheden:
Garage met uitstortgootsteen
Handbediend zonnescherm op balkon
Elektrisch zonnescherm op woonkamergevel en twee tuinslaapkamers
Vloerverwarming in hal, woonkamer, keuken, bijkeuken, toilet en overloop trapopgang
Badkamer elektrische vloerverwarming
Centrale afzuiging toilet en badkamer

Oplevering:
De oplevering kan omstreeks februari 2022 plaatsvinden

Kenmerken

Overdracht

Status
Verkocht
Oplevering
In overleg

Bouw

Woonhuis
Eengezinswoning, Eindwoning, Split-level woning
Soort bouw
Bestaande bouw
Bouwjaar
1976
Onderhoud binnen
Goed
Onderhoud buiten
Goed

Oppervlakten en inhoud

Oppervlakte
133m²
Perceel
125m²
Overig
17m²
Inhoud
530m³

Indeling

Kamers
6
Slaapkamers
4
Badkamers
1
Verdiepingen
4
Voorzieningen
Mechanische ventilatie, Buitenzonwering

Buitenruimte

Ligging
In centrum
Balkon
Ja
Tuin
Achtertuin
Achtertuin
Zuidoost, 51m², 1000×510cm
Schuur
Inpandig

Energie

Energielabel
B
Isolatie
Dakisolatie, Muurisolatie, Vloerisolatie, Dubbel glas
Warm water
C.V.-ketel
Verwarming
C.V.-ketel, Vloerverwarming gedeeltelijk, Houtkachel
Ketel
Remeha (2017, Combi-ketel, Eigendom)

Garage

Soort garage
Inpandig
Capaciteit
1

Locatie

[ { "address": "Hendrik Hamerstraat 87", "zipCode": "3295 CG", "city": "'s-Gravendeel" } ]