Lindehof 144  's-Gravendeel

Verkocht

Omschrijving

Royale woning met terras aan het water en dakterras op de eerste verdieping, gelegen in gewilde woonwijk Lindehof, op loopafstand van het centrum.

Wie op zoek is naar een woning die nét iets anders is dan andere -of wie liever geen tuinonderhoud heeft- vindt hier een aantrekkelijk huis met veel leefruimte en een speelse indeling.
Deze is als volgt: entree, hal met meterkast en toiletruimte met wandcloset en fonteinbakje.
De ruime open keuken is in 2020 vernieuwd en uitgevoerd met inbouwapparatuur.
Het woongedeelte ligt een paar traptreden lager (splitlevel) en grenst aan het terras. De gevel is over de gehele breedte voorzien van glas en een schuifpui, wat zorgt voor een prettige lichtinval.
De trap bevindt zich ook in deze ruimte. Hieronder is een praktische trapkast.

In de keuken en het eetgedeelte ligt comfortabele vloerverwarming.

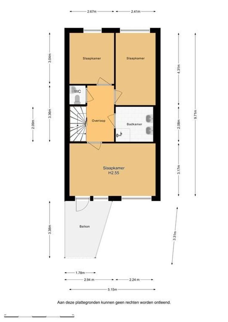
Op de eerste verdieping geeft de overloop toegang tot een aparte toiletruimte, de badkamer en de drie slaapkamers.
De grootste slaapkamer heeft een deur naar het dakterras, dat qua grootte zal verrassen. Er passen met gemak een paar stoelen en een tafeltje op.

De badkamer is ingericht met een dubbele wastafel en een douchecabine. De wanden zijn volledig betegeld.

Ook de tweede verdieping is bereikbaar met een vaste trap.
Hier bevindt zich een grote open ruimte, met de opstelplaats van de cv-ketel, de mechanische ventilatie en de aansluiting voor de wasmachine.
Er is genoeg ruimte om een extra slaapkamer te maken.

Vrijwel alle vloeren zijn afgewerkt met een eigentijdse laminaatvloer.

Aan de voorkant van de woning bevindt zich een aangebouwde stenen berging.

De woning is gebouwd in 2001 en is uiteraard uitgevoerd met dubbel glas, dak-, vloer- en muurisolatie.

Al met al een leuk huis, dat zonder grote aanpassingen betrokken kan worden.

De oplevering kan in mei 2022 plaatsvinden.

Nieuwsgierig?
Maak dan snel een afspraak voor een vrijblijvende bezichtiging met MarQuis makelaars & taxateurs. U bent van harte welkom!

Kadastrale gegevens:
Gemeente ‘s-Gravendeel, sectie B nummer 3651, groot 97 m²
Volle eigendom
Terrasligging: noord

Maatvoering (indicatief):
Gebruiksoppervlakte wonen : circa 129 m²
Gebruiksopp. berging : circa 5 m²
Gebruiksopp. terras en dakterras : circa 20 m²
Inhoud woning : circa 420 m³

Bijzonderheden:
Keukenapparatuur: afzuigkap, inductiekookplaat, combi-magnetron, koel-vriescombinatie, vaatwasser, boiler. (De combi-magnetron en de koel-vriescombinatie zijn overgeplaatst uit de vorige keuken.)
Intergas combiketel 2001
Itho Daalderop 10 liter boiler (keuken)
Airconditioning 2021

Oplevering:
De oplevering vindt bij voorkeur plaats op 2 mei 2022

Kenmerken

Overdracht

Status
Verkocht
Oplevering
In overleg

Bouw

Woonhuis
Eengezinswoning, Tussenwoning, Waterwoning
Soort bouw
Bestaande bouw
Bouwjaar
2001
Onderhoud binnen
Goed
Onderhoud buiten
Goed

Oppervlakten en inhoud

Oppervlakte
129m²
Perceel
97m²
Inhoud
420m³

Indeling

Kamers
5
Slaapkamers
3
Verdiepingen
3
Voorzieningen
Airconditioning, Dakraam

Buitenruimte

Ligging
Aan het water
Balkon
Ja
Tuin
Zonneterras
Zonneterras
Noord, 13m², 514×250cm
Schuur
Aangebouwd hout

Energie

Energielabel
A
Isolatie
Dakisolatie, Muurisolatie, Vloerisolatie, Dubbel glas
Warm water
C.V.-ketel
Verwarming
C.V.-ketel
Ketel
Intergas (2001, Combi-ketel, Eigendom)

Garage

Locatie

[ { "address": "Lindehof 144", "zipCode": "3295 WH", "city": "'s-Gravendeel" } ]