Vlietstraat 11  's-Gravendeel

Verkocht

Omschrijving

Verzorgde tussenwoning met nokverhoging, aangebouwde berging en tuin, gelegen in een rustige woonwijk.
Deze in 1987 gebouwde tussenwoning staat op een perceel van 108 m² eigen grond.
Vanaf de bouw is de woning door de eerste eigenaar met veel plezier bewoond geweest. Nu is het tijd om er een ander blij mee te maken.

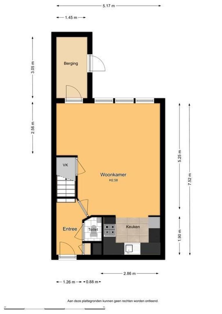
De indeling is als volgt: entree, hal met meterkast en moderne toiletruimte met wandcloset en fonteinbakje.

Tuingerichte woonkamer met aluminium schuifpui, trapkast en achterhal.
Keuken aan de straatzijde in hoekopstelling, voorzien van complete inbouwapparatuur te weten: vaatwasser, inductiekookplaat, afzuigkap, vriezer, koelkast en combi-magnetron.

De begane grond is afgewerkt met een eigentijdse laminaatvloer.

Op de eerste verdieping zijn drie slaapkamers en een mooie badkamer. Deze is ingericht met een wastafelmeubel, doucheruimte met regendouche, tweede toilet en kunststof ligbad. De vloer is voorzien van comfortabele vloerverwarming.

De tweede verdieping is vergoot door middel van een gedeeltelijke nokverhoging. Hierdoor is er meer licht en ruimte.
De voorzolder biedt plaats aan de cv-ketel en de unit van de mechanische ventilatie.
Er zijn nog twee extra slaapkamers op deze woonlaag.

De woning is uitgevoerd met dubbel glas (met uitzondering van de voordeur) en wordt centraal verwarmd.
Aan de buitengevel zijn diverse (elektrische) rolluiken en een zonnescherm aangebracht.

Aan de achterkant staat nog een houten berging. De tuin ligt op het zuidwesten en is netjes onderhouden.

Vlakbij de woning is een leuke speeltuin en met een paar minuten lopen is het centrum van het dorp, met scholen en winkels, te bereiken.

Al met al een prima (gezins)woning, die eind mei van dit jaar beschikbaar is.

Nieuwsgierig?
Maak dan snel een afspraak voor een vrijblijvende bezichtiging met MarQuis makelaars & taxateurs. U bent van harte welkom!

Kadastrale gegevens:
Gemeente ‘s-Gravendeel, sectie B nummer 2868, groot 108 m²
Volle eigendom
Tuinligging: zuidwest

Maatvoering (indicatief):
Gebruiksoppervlakte wonen : circa 100 m²
Gebruiksopp. berging : circa 4 m²

Bijzonderheden:
Nefit combi-ketel 2012
Dakbedekking aanbouw achterzijde 2018
Buitenschilderwerk in 2019 uitgevoerd
Vloerverwarming achterhal defect (verwarming middels radiator)
Mechanische ventilatie-unit 2021

Oplevering:
De oplevering vindt bij voorkeur plaats eind mei 2022.

Kenmerken

Overdracht

Status
Verkocht
Oplevering
In overleg

Bouw

Woonhuis
Eengezinswoning, Tussenwoning
Soort bouw
Bestaande bouw
Bouwjaar
1987
Onderhoud binnen
Goed
Onderhoud buiten
Goed

Oppervlakten en inhoud

Oppervlakte
100m²
Perceel
108m²
Inhoud
335m³

Indeling

Kamers
6
Slaapkamers
5
Badkamers
1
Verdiepingen
3
Voorzieningen
Mechanische ventilatie, Rolluiken, Buitenzonwering, Schuifpui, Dakraam

Buitenruimte

Ligging
In woonwijk
Tuin
Achtertuin
Achtertuin
Zuidwest, 47m², 520×900cm
Schuur
Aangebouwd hout

Energie

Energielabel
B
Isolatie
Dakisolatie, Muurisolatie, Vloerisolatie, Grotendeels dubbelglas
Warm water
C.V.-ketel
Verwarming
C.V.-ketel
Ketel
Nefit (2002, Combi-ketel, Eigendom)

Garage

Locatie

[ { "address": "Vlietstraat 11", "zipCode": "3295 GM", "city": "'s-Gravendeel" } ]