Vlietstraat 6  's-Gravendeel

Verkocht

Omschrijving

Tussenwoning met dakopbouw, fraaie serre en onderhoudsvriendelijke tuin, gelegen in een gewilde woonwijk vlakbij het centrum.

De woning is gebouwd in 1987 en staat op een perceel van 100 m² eigen grond. De dakopbouw (met verhoogde nok) op de tweede verdieping is een mooie uitbreiding ten opzichte van het standaard huis. Meer stahoogte, licht en gebruiksmogelijkheden.
De serre werd een aantal jaren geleden aangebouwd (2020). Ook deze biedt extra ruimte en comfort.

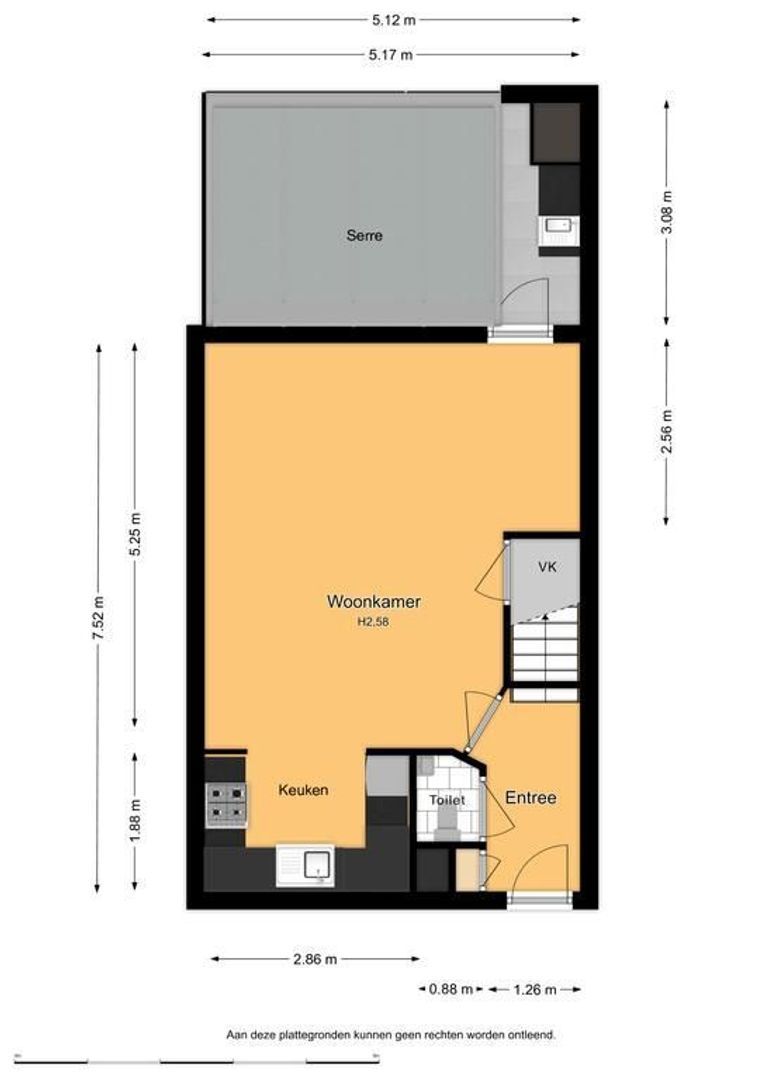
De indeling van de woning is als volgt: entree, hal met meterkast, trapopgang en moderne toiletruimte.
Tuingerichte woonkamer met trapkast en open keuken aan de straatzijde. Deze is U-vormig ingericht (2007) en voorzien van inbouwapparatuur.
Zowel via de (vernieuwde) schuifpui, als de loopdeur kan de serre worden bereikt. De serre wordt verwarmd d.m.v. een gasheater. De voormalige aangebouwde berging wordt nu gebruikt als ruimte voor de buitenkeuken.

Op de eerste verdieping zijn drie slaapkamers.
De badkamerinrichting is van 2007. Deze bestaat uit een royaal wastafelmeubel, een wandcloset en een kunststof ligbad met wanddouche en spatscherm. Het raam maakt ventileren met frisse buitenlucht mogelijk.

De tweede verdieping is met een vaste trap bereikbaar.
De voorzolder is in gebruik als wasruimte en berging. De vierde slaapkamer is prettig licht vanwege de dakopbouw en het extra dakraam.
Boven deze kamer bevindt zich een kleine bergzolder.

De woning is volledig uitgevoerd met dubbele beglazing (met uitzondering van de voordeur pui) en wordt centraal verwarmd (Remeha 2019).

De achtertuin ligt op het noordwesten.
Hierin staat een houten tuinberging.
Verder is de tuin ingericht met sierbestrating en kunstgras.

De oplevering kan in overleg plaatsvinden.

Nieuwsgierig?
Maak dan snel een afspraak voor een vrijblijvende bezichtiging met MarQuis makelaars & taxateurs. U bent van harte welkom!

Kadastrale gegevens:
Gemeente ‘s-Gravendeel, sectie B nummer 2807 groot 100 m²
Volle eigendom
Tuinligging: noordwest

Maatvoering (indicatief):
Woonoppervlakte : circa 98 m²
Overige inpandig ruimte : circa 15 m² (serre)
Externe bergruimte : circa 3 m²

Bijzonderheden:
Laminaat vloerafwerking
Remeha combiketel 2019
Elektrisch rolluik dakopbouw
Fineerlaag keuken laat los
Serre is met gasheater uitgevoerd

Oplevering:
De oplevering kan in overleg plaatsvinden, desgewenst op korte termijn.

Kenmerken

Overdracht

Status
Verkocht
Oplevering
In overleg

Bouw

Woonhuis
Eengezinswoning, Tussenwoning
Soort bouw
Bestaande bouw
Bouwjaar
1987
Onderhoud binnen
Goed
Onderhoud buiten
Redelijk

Oppervlakten en inhoud

Oppervlakte
98m²
Perceel
100m²
Overig
15m²
Inhoud
325m³

Indeling

Kamers
5
Slaapkamers
4
Badkamers
1
Verdiepingen
3
Voorzieningen
Rolluiken, Schuifpui, Dakraam

Buitenruimte

Ligging
In woonwijk
Tuin
Achtertuin
Achtertuin
Noordwest, 46m², 540×850cm
Schuur
Vrijstaand hout

Energie

Energielabel
C
Isolatie
Dakisolatie, Muurisolatie, Vloerisolatie, Dubbel glas
Warm water
C.V.-ketel
Verwarming
C.V.-ketel
Ketel
Remeha (2019, Combi-ketel, Eigendom)

Garage

Locatie

[ { "address": "Vlietstraat 6", "zipCode": "3295 GN", "city": "'s-Gravendeel" } ]