Trompstraat 20  Heinenoord

Verkocht

Omschrijving

Leuke 5-kamer tussenwoning met serre, tuin en berging, gelegen in het buurtschap Blaaksedijk op een perceel van 129 m² eigen grond.

Deze in 1964 gebouwde woning is in de loop der tijd verbeterd en gemoderniseerd. Ook is er een aantal dure extra’s aangebracht, zoals 10 zonnepanelen, een pelletkachel, vloerverwarming op de begane grond en een fraaie aangebouwde serre/tuinkamer met zonwering.

De indeling is als volgt:
Entree, hal met meterkast, trapopgang en toiletruimte. Deze is ingericht met een wandcloset en is volledig betegeld.

Tuingerichte woonkamer met gezellige pelletkachel en openslaande deuren naar de tuinkamer/serre met schuiframen.
De open keuken is aan de straatzijde gesitueerd. Deze heeft een L-vormige indeling en is uitgevoerd met een fraai solitair Boretti fornuis met 6 pitten en een grote oven, afzuigkap en een vaatwasser.

De woonkamer en keuken zijn afgewerkt met een plavuizen vloer met vloerverwarming als hoofdverwarming.

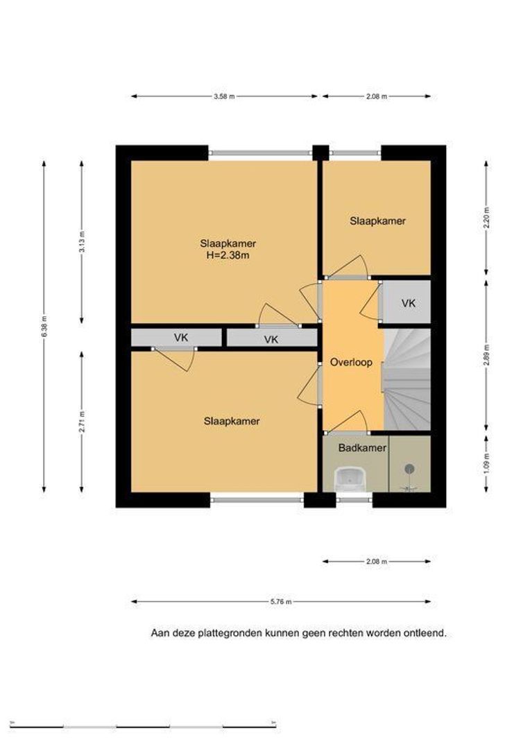
Op de eerste verdieping zijn drie slaapkamers. De vloeren zijn afgewerkt met eiken delen.
De (eenvoudige) badkamer heeft een douchecabine, vaste wastafel en een raam dat ventileren met frisse buitenlucht mogelijk maakt.

De tweede verdieping is met een vaste trap bereikbaar. Op de voorzolder is ruimte voor de wasapparatuur.
De zolderkamer beschikt over een groot tuimelraam.

De buitengevels zijn voorzien van spouwmuurisolatie en de ramen zijn voorzien van dubbel glas.

In de tuin staat een geïsoleerde berging. De achtertuin ligt op het zuidoosten.

Al met al een prima huis voor een prima prijs!

Kadastrale gegevens:
Gemeente Heinenoord, sectie H nummer 330, groot 1 are en 29 centiare
Tuinligging: zuidoost
Volle eigendom

Maatvoering (indicatief):
Gebruiksoppervlakte wonen : circa 97 m²
Gebruiksopp. extern: circa 10 m²
Inhoud woning: circa 310 m³

Bijzonderheden:
Nieuwe panlatten en folie onder de pannen aangebracht
Buitenschilderwerk in 2019 uitgevoerd
Elektra in 2021 gedeeltelijk vernieuwd
Remeha combi-ketel 2016
Goten vernieuwd
Mechanische ventilatie in toilet en badkamer

In de koopovereenkomst zal een zogenaamde ouderdomsclausule worden opgenomen. De makelaar kan u hierover meer vertellen.

Oplevering:
De oplevering vindt bij voorkeur plaats in augustus 2021.

Nieuwsgierig?
Maak dan snel een afspraak voor een vrijblijvende bezichtiging met MarQuis makelaars & taxateurs. U bent van harte welkom!

Kenmerken

Overdracht

Status
Verkocht
Oplevering
In overleg

Bouw

Woonhuis
Eengezinswoning, Tussenwoning
Soort bouw
Bestaande bouw
Bouwjaar
1964
Onderhoud binnen
Goed
Onderhoud buiten
Goed

Oppervlakten en inhoud

Oppervlakte
97m²
Perceel
129m²
Inhoud
310m³

Indeling

Kamers
5
Slaapkamers
3
Badkamers
1
Verdiepingen
3
Voorzieningen
Rookkanaal, Dakraam, Zonnepanelen, Natuurlijke ventilatie

Buitenruimte

Ligging
Aan rustige weg, In woonwijk
Tuin
Achtertuin, Voortuin
Achtertuin
Zuidoost, 54m², 600×900cm
Schuur
Vrijstaand steen

Energie

Isolatie
Muurisolatie, Dubbel glas
Warm water
C.V.-ketel
Verwarming
C.V.-ketel, Vloerverwarming gedeeltelijk, Pelletkachel
Ketel
Remeha (2016, Eigendom)

Garage

Locatie

[ { "address": "Trompstraat 20", "zipCode": "3274 LT", "city": "Heinenoord" } ]