Maashofje 18  Maasdam

€ 292.500 k.k.

Omschrijving

BEZICHTIGING VAN DEZE WONING IS PAS MOGELIJK NA DE INSCHRIJFPERIODE.
Het aanmeldingsformulier is te downloaden via marquis.nl (onder het kopje “documenten bij de woning”).

Namens HW Wonen bieden wij aan een moderne en instapklare tussenwoning met een leuke tuin en houten berging, gelegen op een perceel van 99 m² eigen grond. De woning staat aan een autoluw hofje in een kindvriendelijke nieuwbouwwijk uit 2011.

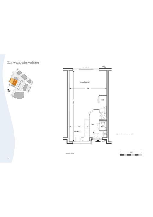
De indeling is globaal als volgt: entree/hal met meterkast en moderne toiletruimte.
Tuingerichte woonkamer met trapopgang en trapkast, deur naar de tuin en veel lichtinval. Hier kan je gebruik maken van het comfort van de airco. Moderne keuken voorzien van een vijfpits gaskookplaat, Quooker, vaatwasser, combi-oven, afzuigkap en koel-vriescombinatie. De gehele begane grond is voorzien van plavuizen met vloerverwarming.
Op de eerste verdieping zijn de overloop, twee slaapkamers beide voorzien airco en de nette badkamer. Deze is ingericht met een wastafelmeubel, tweede toilet, hoekbad en een douchecabine en heeft vloerverwarming.
De tweede verdieping is met een vaste trap bereikbaar. Hier bevinden zich een open zolder met cv-ketel (Intergas 2011) en aansluitingen voor de wasapparatuur. Door het grote dakraam is ook hier veel lichtinval.

De leuk aangelegde achtertuin ligt op het zuidoosten en is voorzien van een houten berging.
De woning is volledig geïsoleerd en uitgevoerd met hardhouten kozijnen met dubbele beglazing. Energielabel A is van toepassing.
Op het dak liggen 10 zonnepanelen (6 achter en 4 voor), die bijdragen aan een lagere energienota.

De gebruiksoppervlakte wonen bedraagt circa 80 m². Dit is exclusief de berging van circa 6 m².

Bijzonder leuke woning die zonder veel aanpassingen betrokken kan worden en op korte termijn beschikbaar is!

De woning wordt aangeboden op basis van Koopgarant.

Taxatiewaarde: € 390.000,=
Koopsom op basis van KoopGarant: € 292.500,=

Verkoopvoorwaarden:
De koopsom is een vaste prijs en is niet onderhandelbaar.
Er is een bouwkundig rapport beschikbaar, dat wordt gemaild voorafgaand aan de bezichtiging. De woning wordt verkocht in de staat zoals deze is vermeld in het bouwkundig rapport. Bij het bepalen van de waarde van de woning is hiermee rekening gehouden.

De overdracht vindt plaats via een vaste projectnotaris. Dit is Van der Straaten Notarissen Hoeksche Waard. Koper heeft hierin geen keuzevrijheid.
De kosten koper zijn voor rekening van de koper.

De woning wordt verkocht met ‘KoopGarant’, waardoor een korting van 25% op de taxatiewaarde is verstrekt.
Informatie over KoopGarant is te vinden op onze website.

Verkoop is voorbehouden aan de persoon die er zelf feitelijk en daadwerkelijk gaat wonen. In de overeenkomst wordt een zelfbewoningsclausule opgenomen. De bewoningsverplichting geldt voor de koper.
Onder 'bewonen' wordt onder meer verstaan dat de koper:
- wekelijks minimaal vier van de zeven nachten in de woning slaapt;
- in de woning kookt en eet;
- aan het adres van de woning zijn post ontvangt;
- de woning stoffeert en meubileert en er zijn persoonlijke spullen bewaart;
- zich op het adres van de woning inschrijft in de BRP.
In aansluiting op deze zelfbewoningsclausule worden eveneens een verkoopverbod van twee jaar met een daaraan gekoppeld meerwaardebeding opgenomen.

Belangstellenden kunnen zich aanmelden door het invullen van een aanmeldingsformulier.
Hierop staan ook de categorieën vermeld op basis waarvan de woning wordt toegewezen. Het aanmeldingsformulier is af te halen bij ons op kantoor of te downloaden via onze website (dit staat bij de betreffende woning onder het kopje 'documenten' bij de woning).
De ontvangst van een aanmelding wordt door MarQuis makelaars & taxateurs per mail bevestigd, binnen een week na ontvangst.

Inschrijvingen dienen op uiterlijk maandag 01 december 2025 om 17.00 uur door MarQuis makelaars & taxateurs te zijn ontvangen ontvangen (Kerkstraat 7, 3295 BD ’s-Gravendeel of marquis@marquis.nl).

Na sluiting van de inschrijfperiode wordt de verkoopvolgorde overeenkomstig de doelgroepen bepaald en zal met de eerste kandidaat een afspraak voor een bezichtiging worden gemaakt. De overige belangstellenden zullen binnen twee werkdagen na de sluitingsdatum inschrijfperiode via de mail worden geïnformeerd. Op de site van MarQuis makelaars & taxateurs zal de status ten aanzien van de verkoop te zien zijn (optie, verkocht onder voorbehoud etc).

De volgorde van toewijzen wordt bepaald aan de hand van onderstaande categorieën, op basis van inkomen.

Categorie 1: Huurder van een sociale huurwoning van HW Wonen
Categorie 2: Overige kandidaten met een inkomen lager dan € 70.000,-

Bij meerdere kandidaten per categorie gaan kandidaten met een lager inkomen voor op kandidaten met een hoger inkomen.

Inkomen aantonen na voorlopige toewijzing
Degenen die de woning krijg toegewezen en wordt uitgenodigd voor een bezichtiging, dient het opgegeven inkomen aan te tonen middels een IB60 verklaring van de Belastingdienst.

Je vraagt deze aan via www.belastingdienst.nl, kies inkomensverklaring en houd DigiD bij de hand. De verklaring kan direct worden gedownload.
Het opgegeven inkomen dient binnen 48 uur na toewijzing en voorafgaand aan de bezichtiging te worden aangetoond. Bij het ontbreken van de juiste IB60 verklaring of in geval onjuiste informatie is verstrekt, komt de toewijzing te vervallen.

Verstrekte informatie
De informatie die is opgenomen is met zorg samengesteld. Voor het verzamelen van de gegevens is MarQuis makelaars & taxateurs B.V. in belangrijke mate afhankelijk van derden. Voor de juistheid hiervan wordt geen aansprakelijkheid aanvaard. De opgegeven groottes en maten zijn circa.

Kenmerken

Overdracht

Vraagprijs
€ 292.500 k.k.
Status
Verkocht onder voorbehoud
Oplevering
In overleg

Bouw

Woonhuis
Eengezinswoning, Tussenwoning
Soort bouw
Bestaande bouw
Bouwjaar
2011
Onderhoud binnen
Goed
Onderhoud buiten
Goed

Oppervlakten en inhoud

Oppervlakte
80m²
Perceel
99m²
Inhoud
300m³

Indeling

Kamers
4
Slaapkamers
2
Badkamers
1
Verdiepingen
3
Voorzieningen
Mechanische ventilatie, Rolluiken, TV-Kabel, Airconditioning, Zonnepanelen

Buitenruimte

Ligging
Aan rustige weg, In woonwijk
Tuin
Achtertuin, Voortuin
Achtertuin
Zuidoost, 5m², 500×100cm
Schuur
Vrijstaand hout
Faciliteiten schuur
Voorzien van elektra

Energie

Energielabel
A
Isolatie
Volledig geisoleerd
Warm water
C.V.-ketel
Verwarming
C.V.-ketel
Ketel
Intergas (2011, Combi-ketel, Eigendom)

Garage

Locatie

[ { "address": "Maashofje 18", "zipCode": "3299 CC", "city": "Maasdam" } ]

Interesse? Vraag hier een bezichtiging aan.

Deze woning is Verkocht onder voorbehoud

Uw bericht is naar ons verzonden. Wij nemen zo snel mogelijk contact met u op.

Er is iets mis gegaan met het versturen van het formulier.
Controleer of u alle velden (goed) heeft ingevoerd en probeer het nog een keer.


Heeft u een vraag?

Wij zijn maandag t/m vrijdag bereikbaar van 9:00 tot 17:15 uur

Bel 078 673 7244