Maaslaantje 3  Maasdam

Verkocht

Omschrijving

Toplocatie aan de Binnenmaas met vrijstaande woning, eigen aanlegsteiger en fraaie tuin, prachtige gesitueerd aan de binnen bedijkte Maas. Totaal 905 m² eigen grond.

Verscholen achter het groen staat deze in 1963 gebouwde vrijstaande semi-bungalow met dubbele garage.
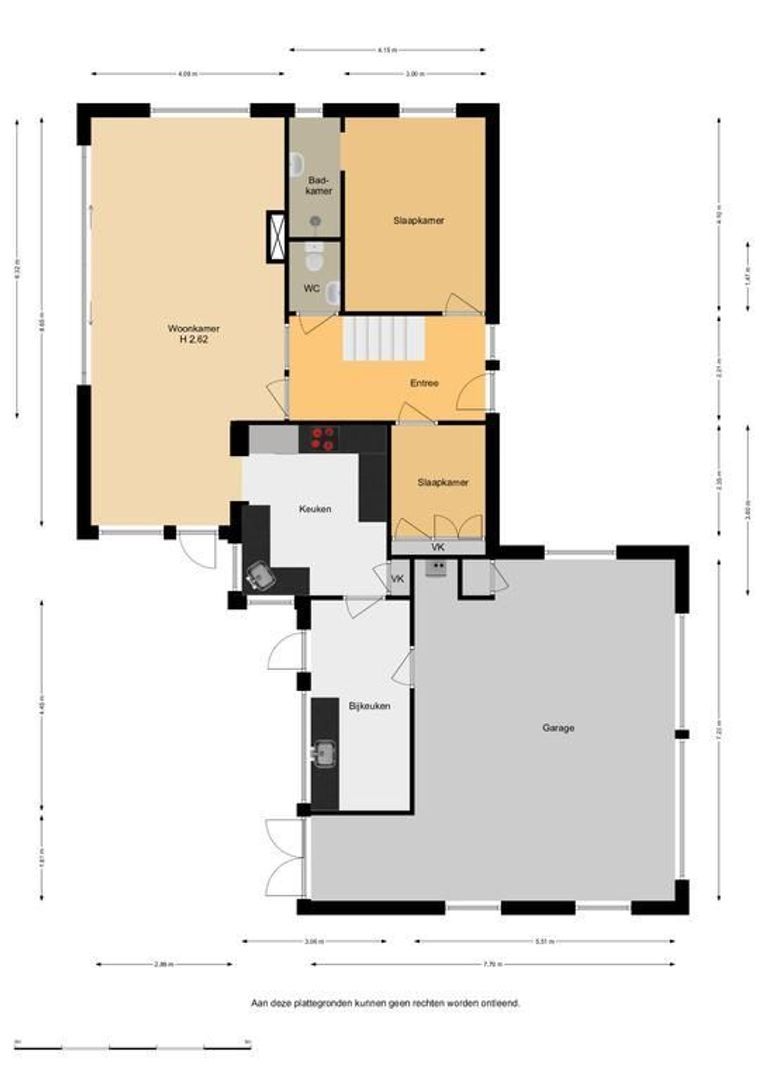
Een degelijke woning met een prima plattegrond met fraaie ruimtes.
Zowel op de begane grond als op de verdieping zijn slaapkamers en een badkamer. In totaal zijn er 5 slaapkamers en twee badkamers. Hiermee is de woning geschikt voor zowel gezinnen als senioren of mensen die slecht ter been zijn.

De indeling is globaal als volgt: ruime entreehal die direct toegang biedt tot de woonkamer. Deze ligt over de gehele breedte van het huis en biedt een weids uitzicht over de tuin en het water. De ruimte is uitgevoerd met een sfeervolle schouw met gashaard, airconditioning en een schuifpui naar het terras.

De halfopen keuken heeft een uitgebreide inrichting, voorzien van inbouwapparatuur en comfortabele vloerverwarming. Vanuit de keuken wordt de praktische bijkeuken bereikt, welke tevens toegang geeft tot de dubbele garage.

Aan de voorkant bevinden zich twee slaapkamers, waarvan één met een inpandige badkamer. Deze is voorzien van een douchegelegenheid en een vaste wastafel.

Op de verdieping zijn drie slaapkamers en een tweede badkamer. Deze is ingericht met een ligbad, een wastafel en een tweede toilet.
Boven de verdieping bevindt zich een onbevloerde ruimte.

De aangebouwde garage is uitgevoerd met twee elektrische deuren.

De tuin rondom de woning biedt beschutting en privacy.

De waterkant is grotendeels afgewerkt met een damwand met toegang tot de grote steiger.

Kadastrale gegevens:
Gemeente Maasdam, sectie A nummer 1775 groot 905 m²
Volle eigendom
Tuinligging: zuid

Maatvoering (indicatief):
Woonoppervlakte : circa 151 m²
Overige inpandig ruimte : circa 44 m²

Bijzonderheden:
In de koopovereenkomst zal een zogenaamde ouderdomsclausule worden opgenomen. De makelaar kan u hierover meer vertellen.
Grotendeels isolerende beglazing, woonkamer met screen en elektrisch zonnescherm
Huur Waterschap €170,= per jaar voor gebruik water/steiger
Leistenen vloer woongedeelte
Buitenschilderwerk in 2021 uitgevoerd

Oplevering:
De oplevering kan in overleg plaatsvinden

Met de plattegrond en de foto’s hebben wij geprobeerd een eerste indruk van het object te schetsen. Als uw interesse is gewekt, dan nodigen wij u uit om de echte sfeer te komen proeven. U bent van harte welkom voor een vrijblijvende bezichtiging, na afspraak met MarQuis makelaars & taxateurs. Welkom!

Kenmerken

Overdracht

Status
Verkocht
Oplevering
In overleg

Bouw

Woonhuis
Bungalow, Vrijstaande woning, Semi-bungalow
Soort bouw
Bestaande bouw
Bouwjaar
1963
Onderhoud binnen
Goed
Onderhoud buiten
Goed

Oppervlakten en inhoud

Oppervlakte
151m²
Perceel
905m²
Overig
44m²
Inhoud
700m³

Indeling

Kamers
6
Slaapkamers
5
Badkamers
2
Verdiepingen
3
Voorzieningen
Buitenzonwering, Airconditioning

Buitenruimte

Ligging
Aan het water, Aan rustige weg, In woonwijk
Tuin
Tuin rondom

Energie

Energielabel
F
Isolatie
Gedeeltelijk dubbel glas
Warm water
C.V.-ketel
Verwarming
C.V.-ketel, Vloerverwarming gedeeltelijk, Gashaard
Ketel
Remeha (Combi-ketel, Eigendom)

Garage

Soort garage
Aangebouwd steen
Capaciteit
2

Locatie

[ { "address": "Maaslaantje 3", "zipCode": "3299 AM", "city": "Maasdam" } ]