Griendstraat 58  Mookhoek

Verkocht

Omschrijving

Op zoek naar een betaalbare, ruime woning?
Dan is dit een mooie kans!

Deze hoekwoning is gebouwd omstreeks 1971 en staat op een perceel van 214 m² eigen grond (inclusief een deel van het zij- en achterpad).

Ligging in het buurtschap Mookhoek, dat is in het landelijk gebied tussen
’s-Gravendeel en Strijen. Hier is een lagere school, maar voor winkels en andere voorzieningen is men aangewezen op de dorpen uit de omgeving.

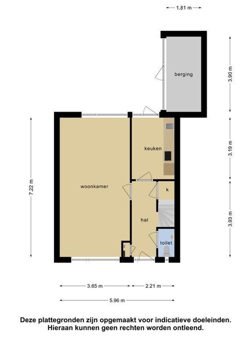
De woning heeft de volgende indeling: entree, hal met meterkast en trapopgang met trapkast. Toiletruimte met wandcloset en fonteinbakje.
Mooi lichte doorzon woonkamer met grote ramen.
Dichte keuken met moderne landelijke inrichting, uitgevoerd met een koel-vriescombinatie, inductie kookplaat, afzuigkap, vaatwasser, 10 liter boiler en Quooker.

De begane grondvloer is afgewerkt met laminaat en de muren met spuitwerk.

Op de eerste verdieping zijn drie slaapkamers, alle met laminaat vloerafwerking.

De badkamer is ingericht met een wastafelmeubel, een doucheruimte en een tweede toilet.

De tweede verdieping is met een vaste trap te bereiken.
Deze is voorzien van een klein dakraam.
Hier bevinden zich de aansluitingen voor de wasmachine en de cv-ketel.
De zolder is groot genoeg om desgewenst een extra slaapkamer te maken.

De ramen en kozijnen zijn uitgevoerd in kunststof (met uitzondering van het dak- en toiletraam) met dubbel glas.

Al met al een prima (gezins)woning waaraan na de aankoop al een heleboel verbeterd en gemoderniseerd is.

De oplevering kan eind april 2022 plaatsvinden.

Nieuwsgierig?
Maak dan snel een afspraak voor een vrijblijvende bezichtiging met MarQuis makelaars & taxateurs. U bent van harte welkom!

Kadastrale gegevens:
Gemeente Strijen, sectie G nummer 2160, groot 2 are en 14 centiare
Tuinligging: noordoost
Volle eigendom

Maatvoering (indicatief):
Gebruiksoppervlakte wonen : circa 86 m²
Gebruiksopp. overig inpandig (tweede verdieping en berging) : circa 26 m²
Inhoud woning : circa 400 m³

Bijzonderheden:
Vaillant combi ketel van 2006
Elektrische rolluiken voorzijde

Oplevering:
De oplevering kan eind april 2022 plaatsvinden.

Kenmerken

Overdracht

Status
Verkocht
Oplevering
In overleg

Bouw

Woonhuis
Eengezinswoning, Hoekwoning
Soort bouw
Bestaande bouw
Bouwjaar
1971
Onderhoud binnen
Goed
Onderhoud buiten
Goed

Oppervlakten en inhoud

Oppervlakte
86m²
Perceel
214m²
Overig
24m²
Inhoud
400m³

Indeling

Kamers
5
Slaapkamers
3
Badkamers
1
Verdiepingen
3
Voorzieningen
Dakraam

Buitenruimte

Ligging
Aan rustige weg, In woonwijk
Tuin
Achtertuin, Voortuin, Zijtuin
Achtertuin
Noordoost, 78m², 650×1200cm
Schuur
Aangebouwd steen

Energie

Energielabel
D
Isolatie
Dakisolatie, Muurisolatie, Dubbel glas
Warm water
C.V.-ketel
Verwarming
C.V.-ketel
Ketel
Vaillant (2006, Combi-ketel, Eigendom)

Garage

Locatie

[ { "address": "Griendstraat 58", "zipCode": "3293 AA", "city": "Mookhoek" } ]