Wilhelminastraat 48  Numansdorp

€ 915 p.m. ex.

Omschrijving

BEZICHTIGINGEN ZIJN PAS MOGELIJK NA SCHRIFTELIJKE AANMELDING EN OP UITNODIGING VAN VERHUURDER. LET OP MINIMALE INKOMENSEIS BIJ INSCHRIJVING en LEEFTIJD VANAF 55 JAAR.

Ruime 3-kamer maisonnette met balkon en berging. Ligging aan de rand van de woonwijk, op loopafstand van het centrum en met uitzicht op de voetbalvelden.

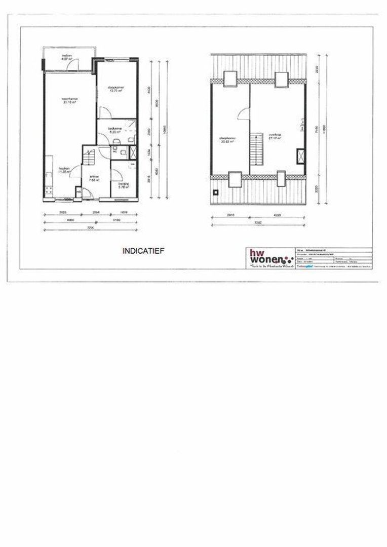
Er zijn twee woonlagen. Op de eerste verdieping zijn een hal met inpandige bergruimte, toiletruimte, badkamer, slaapkamer en ruime woonkamer met open keuken. De keuken is uitgebreid en voorzien van inbouwapparatuur.
De woonkamer geeft toegang tot een leuk balkon, met een goede bezonning.

Het woongedeelte is afgewerkt met een mooie laminaatvloer.

Op de verdieping zijn nog twee vertrekken. Een bijzonder grote overloop met 2 Velux dakramen en kastruimte met daarin o.a. de cv-ketel.
Dan is er nog een tweede slaapkamer, eveneens voorzien van twee Velux dakramen.

De woning is voorzien van dubbel glas en wordt centraal verwarmd (Nefit combi ketel 2011).

Door de vertrekkende huurder wordt voor een bedrag van € 1250,= ter overname aangeboden het totale onderstaande pakket:
- Laminaat vloer, vloerbedekking en vinyl
- Uitbreiding keuken kast en inbouwapparatuur; gaskookplaat, koelkast, combi-oven een vaatwasser
- Raamdecoratie en hordeur
- Zonnescherm en kunststof balkontegels
- Douchecabine
- Kastombouw verdieping

Deze fraaie woning is beschikbaar vanaf 15 oktober 2021.

Belangstellenden in de leeftijd van 55 jaar en ouder kunnen reageren.

De huurprijs bedraagt € 915,- per maand exclusief € 50,- servicekosten.

Om in aanmerking te komen voor deze woning dient het gezamenlijk bruto inkomen per maand (excl. vakantiegeld) minimaal 4 x de maandhuur te zijn (minimaal jaarinkomen is dan 4 x maandhuur x factor 12,96). Dit komt neer op een minimaal (gezamenlijk) jaarinkomen van € 47.000,=.
De huurprijs wordt jaarlijks verhoogd conform de geldende regels per 1 juli (voor het eerst in 2022).
De minimale huurperiode is 1 jaar.

Als u interesse heeft, dan kunt u zich schriftelijk aanmelden via www.marquis.nl. Bij de aanmelding dienen de volgende gegevens te worden gevoegd (of uiterlijk tijdens de bezichtiging te worden aangeleverd):
• VGI (Verklaring Geregistreerd Inkomen) 2020 (inkomensgegevens 2020, op te vragen bij de Belastingdienst op telefoonnummer 0800-0543 of via de website (inloggen met uw Digid)
• 3 recente loonstroken
• Verhuurdersverklaring (indien u eerder een woning heeft gehuurd)
• Geldig legitimatiebewijs (paspoort of ID kaart voor en achterzijde)

Aanmeldingen worden door verhuurder (HW Wonen) gescreend en verder in behandeling genomen. Bezichtigingen en toewijzing geschiedt door HW Wonen op basis van de opgegeven bovenstaande informatie en op basis van gunning. Door verhuurder zal een kredietcheck worden uitgevoerd. Foutief verstrekte informatie kan leiden tot herziening van de toewijzing.
Huurtoeslag is niet mogelijk.
Gunning wordt voorbehouden.

Kenmerken

Overdracht

Huurprijs
€ 915 p.m. ex.
Servicekosten
€ 50
Status
Verhuurd
Oplevering
In overleg

Bouw

Appartement
Maisonnette
Woonlaag
1
Soort bouw
Bestaande bouw
Bouwjaar
2011
Onderhoud binnen
Goed
Onderhoud buiten
Goed

Oppervlakten en inhoud

Oppervlakte
120m²
Inhoud
385m³

Indeling

Kamers
4
Slaapkamers
2
Verdiepingen
2
Voorzieningen
Mechanische ventilatie

Buitenruimte

Ligging
In centrum, In woonwijk
Balkon
Ja
Schuur
Inpandig

Energie

Isolatie
Dakisolatie, Muurisolatie, Vloerisolatie, Dubbel glas
Warm water
C.V.-ketel
Verwarming
C.V.-ketel
Ketel
Nefit (2010)

Locatie

[ { "address": "Wilhelminastraat 48", "zipCode": "3281 BZ", "city": "Numansdorp" } ]

Interesse? Vraag hier een bezichtiging aan.

Deze woning is Verhuurd

Uw bericht is naar ons verzonden. Wij nemen zo snel mogelijk contact met u op.

Er is iets mis gegaan met het versturen van het formulier.
Controleer of u alle velden (goed) heeft ingevoerd en probeer het nog een keer.


Heeft u een vraag?

Wij zijn maandag t/m vrijdag bereikbaar van 9:00 tot 17:15 uur

Bel 078 673 7244