Israelsdreef 10  Oud-Beijerland

Verkocht

Omschrijving

Ruime gezinswoning met tuinkamer/serre, diepe tuin en stenen garage, gelegen in een rustige woonwijk vlakbij het Laningpark.
Deze in 1978 gebouwde woning staat op een perceel van 143 m² eigen grond.

Het huis kenmerkt zich door de bijzondere grootte, met onder andere 147 m² gebruiksoppervlakte wonen (exclusief de serre). Er zijn dan ook maar liefst 5 slaapkamers. Intern is het afgewerkt in een landelijke stijl.

De huidige bewoners hebben het huis al 33 jaar in hun bezit en hebben het met veel plezier bewoond. Nu is het tijd om het aan een ander te gunnen.

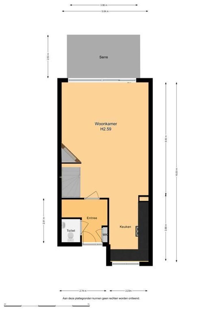
De indeling is als volgt: entree, hal met toiletruimte met wandcloset en wasbakje.
Tuingerichte woonkamer met hoekschouw met openhaard en hardhouten schuifpui naar de serre/tuinkamer die in 2020 is aangebouwd.

De open keuken staat aan de straatkant. Deze heeft een L-vormige inrichting en is uitgevoerd met een natuurstenen aanrecht en spoelbak en diverse inbouwapparaten.

De begane grond is afgewerkt met een plavuizen vloer.

Op de eerste verdieping zijn drie slaapkamers, waarvan twee met toegang tot het balkon. De badkamer is ingericht met een inloopdouche, een wastafelmeubel, een wandcloset en een designradiator.

Een vaste trap geeft toegang tot de tweede verdieping. Op de ruime zolder/overloop zijn de aansluitingen voor de wasapparatuur, de cv-ketel, de afzuiginstallatie (voor douche, keuken en toilet) en een wastafel.
Aan de voor- en achterkant zijn nog twee leuke slaapkamers, waarvan één met daarboven een vliering.

Dit jaar is het buitenschilderwerk nog uitgevoerd, dus dat is weer in orde voor de komende jaren.
De woning is uitgevoerd met dubbele beglazing, grotendeels in kunststof.

De achtertuin ligt op het zuiden. Achterin staat de garage, die is voorzien van een zadeldak. Voor de garage is een eigen parkeerplaats.

Al met al een fijne (gezins)woning in een prettige wijk.

Kadastrale gegevens:
Gemeente Oud-Beijerland, sectie C nummer 4411, groot 143 m²
Volle eigendom
Tuinligging: zuid

Maatvoering (indicatief):
Gebruiksoppervlakte wonen : circa 147 m²
Gebruiksopp. serre : circa 10 m²
Gebruiksopp. garage : circa 17 m²
Inhoud woning : circa 490 m³

Bijzonderheden:
Vaillant combiketel 2018
Buitenschilderwerk 2021
Keukenapparatuur: afzuigkap, kookplaat, combi-magnetron, koel-vriescombinatie, vaatwasser, koffiezetapparaat, Quooker
Schuifpui woonkamer in 2016 vernieuwd

Oplevering:
De oplevering kan eind 2021 plaatsvinden.

Belangstelling:
Wacht dan niet te lang met het maken van een afspraak voor een vrijblijvende bezichtiging met MarQuis makelaars & taxateurs.
U bent van harte welkom!

Kenmerken

Overdracht

Status
Verkocht
Oplevering
In overleg

Bouw

Woonhuis
Eengezinswoning, Tussenwoning
Soort bouw
Bestaande bouw
Bouwjaar
1978
Onderhoud binnen
Goed
Onderhoud buiten
Goed

Oppervlakten en inhoud

Oppervlakte
147m²
Perceel
143m²
Inhoud
490m³

Indeling

Kamers
6
Slaapkamers
5
Badkamers
1
Verdiepingen
3
Voorzieningen
Buitenzonwering, Schuifpui

Buitenruimte

Ligging
In woonwijk
Balkon
Ja
Tuin
Achtertuin, Voortuin
Achtertuin
Zuid, 61m², 510×1200cm

Energie

Energielabel
B
Isolatie
Dubbel glas
Warm water
C.V.-ketel
Verwarming
C.V.-ketel, Open haard
Ketel
Vaillant (2018, Eigendom)

Garage

Soort garage
Vrijstaand steen
Capaciteit
1

Locatie

[ { "address": "Israelsdreef 10", "zipCode": "3262 NA", "city": "Oud-Beijerland" } ]