Merel 7  Oud-Beijerland

Verkocht

Omschrijving

Keurig onderhouden hoekwoning met tuin op het zuidoosten en garage met elektrische deur.

Deze woning is gebouwd in 1992/1993 en staat aan de rand van ‘Zoomwijck’ op een ruim perceel eigen grond van 183 m².
Kenmerkend zijn de nette staat van onderhoud en de rustige ligging.

De indeling is als volgt: entree, hal, meterkast, trapopgang en toiletruimte met wandcloset.
De deur met glas van de hal naar de woonkamer zorgt voor een ruimtelijk effect. De leefruimte bestaat uit een zitgedeelte aan de tuinkant en een uitgebreide keuken aan de straatzijde. Deze is voorzien van de volgende apparatuur: 5-pits gaskookplaat, afzuigkap, koelkast, vaatwasser en combi-magnetron.
Het extra raam in de zijgevel maakt de ruimte extra licht.

De vloer is afgewerkt met een eigentijdse laminaatvloer, de wanden met glasvezelbehang.

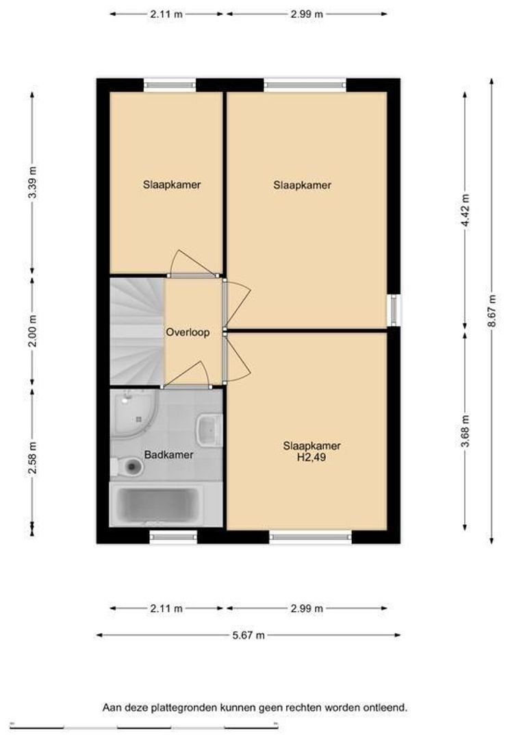
Op de eerste verdieping zijn drie slaapkamers. Deze zijn tevens afgewerkt met een laminaatvloer en glasvezelbehang.
De badkamer biedt ruimte aan een ligbad, een aparte doucheruimte, een wastafelmeubel en een tweede toilet.

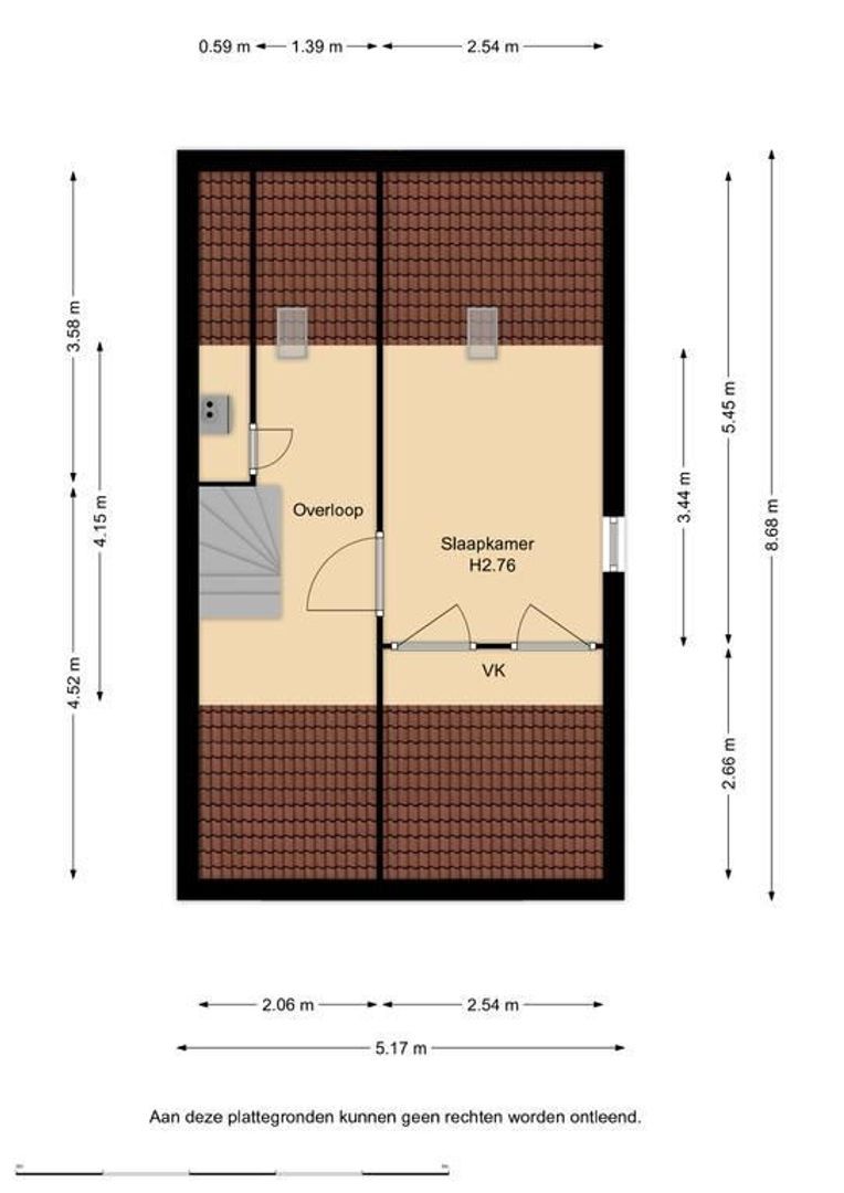
De tweede verdieping is met een vaste trap bereikbaar. Er zijn twee tuimelramen aangebracht, zodat het ook hier prettig licht is.
Op de voorzolder is plaats voor de wasmachine, de cv-ketel en de nodige opslagruimte.
De vierde slaapkamer heeft een extra raam in de zijgevel en beschikt ook over een praktische vaste kast.

Natuurlijk is de woning rondom uitgevoerd met dubbel glas.
De cv-ketel is omstreeks 2016 vernieuwd, dus kan nog lange tijd mee.

De achtertuin ligt op het zuidoosten. Achterin staat een stenen garage, die is uitgevoerd met een elektrische deur.
Aan de achtergevel is in de zomer van 2020 een mooi elektrisch bedienbaar zonnescherm aangebracht.

Al met al een prima (gezins)woning die in de zomer van 2022 kan worden opgeleverd.

Nieuwsgierig?
Maak dan snel een afspraak voor een vrijblijvende bezichtiging met MarQuis makelaars & taxateurs. U bent van harte welkom!

Kadastrale gegevens:
Gemeente Oud-Beijerland, sectie H nummer 1886, groot 183 m²
Volle eigendom
Tuinligging: zuidoost

Maatvoering (indicatief):
Gebruiksoppervlakte wonen : circa 105 m²
Gebruiksopp. garage : circa 18 m²
Inhoud woning : circa 350 m³

Bijzonderheden:
Buitenschilderwerk in 2020 uitgevoerd
Laminaat vloerafwerking in de gehele woning (m.u.v. toilet en badkamer)
Glasvezelbehang op de begane grond en in alle slaapkamers (makkelijk overschilderbaar)

Oplevering:
De oplevering vindt bij voorkeur plaats eind juli 2022

Kenmerken

Overdracht

Status
Verkocht
Oplevering
In overleg

Bouw

Woonhuis
Eengezinswoning, Hoekwoning
Soort bouw
Bestaande bouw
Bouwjaar
1993
Onderhoud binnen
Goed
Onderhoud buiten
Goed

Oppervlakten en inhoud

Oppervlakte
105m²
Perceel
183m²
Inhoud
350m³

Indeling

Kamers
5
Slaapkamers
4
Badkamers
1
Verdiepingen
3
Voorzieningen
Buitenzonwering, Dakraam

Buitenruimte

Ligging
In woonwijk
Tuin
Achtertuin, Voortuin
Achtertuin
Zuidoost, 74m², 620×1200cm

Energie

Isolatie
Dakisolatie, Muurisolatie, Vloerisolatie, Dubbel glas
Warm water
C.V.-ketel
Verwarming
C.V.-ketel
Ketel
Vaillant (2016, Eigendom)

Garage

Soort garage
Vrijstaand steen
Capaciteit
1

Locatie

[ { "address": "Merel 7", "zipCode": "3263 RD", "city": "Oud-Beijerland" } ]