Pieter Repelaerstraat 59 a  Puttershoek

Verkocht

Omschrijving

Bijzonder licht vierkamerappartement met groot dakterras, gelegen in het centrum van het dorp. Mogelijkheid tot het bijkopen van een grote garage, geschikt voor meerdere auto’s.

Dit appartement uit 1961 is feitelijk een vrijstaande bovenwoning.
Kenmerkend zijn de vele en grote ramen, waardoor de woning prettig licht is. Het zonnige dakterras is bijna 50 m² groot en is daarmee royaal en groot genoeg voor zowel een fijne lounge-set als een eettafel met stoelen.
De woning heeft een eigen, aparte entree/trapopgang aan de achterzijde.

Intern zijn de afwerkingen enigszins gedateerd en een koper dient rekening te houden met moderniserings- en verbeteringskosten.

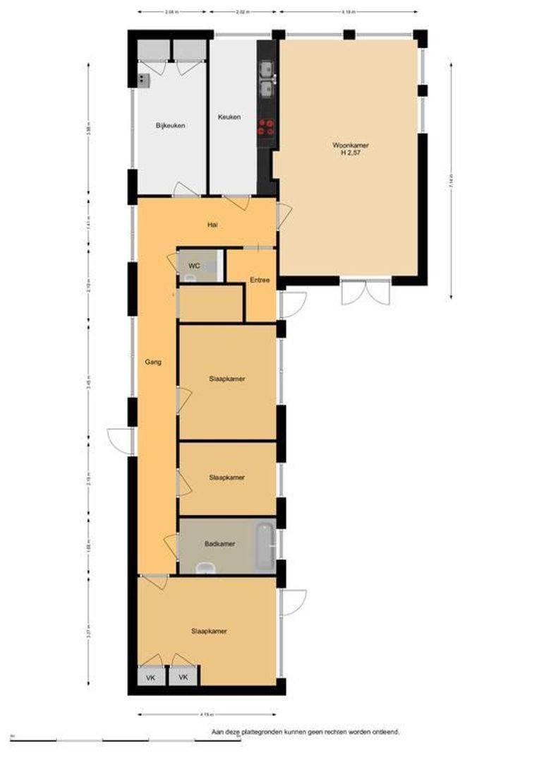
De indeling is als volgt: entree, trapopgang, hal met garderoberuimte en toilet.
Fraaie woonkamer met ramen aan drie zijden en openslaande deuren naar het dakterras.
Dichte keuken met wandopgestelde inrichting, voorzien van natuurstenen aanrechtblad, boiler, inductiekookplaat, oven, koelkast, afzuigkap en vaatwasser.

Er zijn drie slaapkamers.
De badkamer dateert vanaf de bouwperiode en is ingericht met een ligbad, een wastafel en de aansluiting voor de wasmachine.

De ramen en kozijnen zijn uitgevoerd in hout en zijn gedeeltelijk uitgevoerd met dubbelglas. Ook zijn diverse rolluiken en is een zonnescherm aangebracht.
De woning is voorzien van centrale verwarming.

Garage: vraagprijs € 50.000,= k.k.
Een garage met een afmeting van circa 6.30 x 8.22 meter (circa 50 m²) wordt tevens te koop aangeboden. Deze ligt aan de achterkant van de woning en is uitgevoerd met een elektrische deur.
Verkoop van de garage is in eerste instantie voorbehouden aan de koper van het appartement.

De oplevering kan desgewenst op korte termijn plaatsvinden.

Nieuwsgierig?
Maak dan snel een afspraak voor een vrijblijvende bezichtiging met MarQuis makelaars & taxateurs. U bent van harte welkom!

Kadastrale gegevens:
Gemeente Puttershoek, sectie C 2718 appartementsindex 2
Vereniging van Eigenaren is momenteel niet actief

Maatvoering (indicatief):
Gebruiksoppervlakte wonen : circa 112 m²
Gebruiksopp. garage : circa 50 m²

Bijzonderheden:
In de koopovereenkomst zullen een zogenaamde ouderdoms- en niet-zelfbewoningsclausule worden opgenomen. De makelaar kan u hierover meer vertellen.

De overdracht zal op verzoek van verkoper bij Van Dijk Schilperoort notarissen te Oud-Beijerland plaatsvinden.

Oplevering:
De oplevering kan in overleg plaatsvinden.

Kenmerken

Overdracht

Status
Verkocht
Oplevering
In overleg

Bouw

Appartement
Bovenwoning, Appartement
Woonlaag
1
Soort bouw
Bestaande bouw
Bouwjaar
1961
Onderhoud binnen
Redelijk
Onderhoud buiten
Redelijk

Oppervlakten en inhoud

Oppervlakte
112m²
Inhoud
320m³

Indeling

Kamers
4
Slaapkamers
3
Badkamers
1
Verdiepingen
1

Buitenruimte

Ligging
In centrum
Tuin
Zonneterras
Zonneterras
Zuidwest, 54m², 446×1220cm

Energie

Energielabel
G
Isolatie
Gedeeltelijk dubbel glas
Warm water
C.V.-ketel
Verwarming
C.V.-ketel
Ketel
Nefit (2004, Combi-ketel, Eigendom)

Garage

Locatie

[ { "address": "Pieter Repelaerstraat 59", "zipCode": "3297 BL", "city": "Puttershoek" } ]