Waterkers 8  Puttershoek

Verkocht

Omschrijving

Royale tussenwoning met berging en tuin, gelegen in een moderne woonwijk op een perceel van 126 m² eigen grond.

Deze in 2005 gebouwde woning kenmerkt zich door ruime en lichte vertrekken.
Het huis is goed geïsoleerd en beschikt over een energielabel A. Ook zijn in 2021 tien zonnepanelen gelegd, waardoor het huis toekomstbestendig en energiezuinig is.

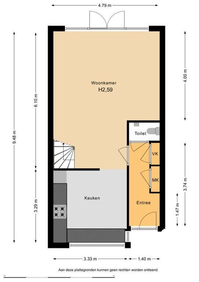
De indeling is als volgt: entree, hal met moderne toiletruimte met wandcloset en fonteinbakje. Gezellige, tuingerichte woonkamer met openslaande deuren naar de tuin. De keuken ligt aan de straatkant. Deze heeft een L-vormige inrichting en is voorzien van inbouwapparatuur, waarvan enkele apparaten recent vernieuwd zijn.

De begane grond is afgewerkt met een eikenhouten vloer in whitewash look.

Op de eerste verdieping zijn twee (voorheen drie) slaapkamers, waarbij de kamer aan de voorzijde een inbouwkast heeft. De slaapkamer aan de achterkant kan eenvoudig weer in twee kamers verdeeld worden. De badkamer is ingericht met een ligbad, wastafelmeubel, en een douchegelegenheid. Op de overloop is een aparte toiletruimte, eveneens met een wandcloset.

De tweede verdieping is voorzien van twee dakramen. Dit zorgt voor extra licht en ruimte.
Op de voorzolder bevindt zich een af te sluiten, technische ruimte met plaats voor de wasmachine, cv-ketel, mechanische ventilatie en de omvormer voor de zonnepanelen.
De derde slaapkamer completeert het geheel. Op de voorzolder is nog genoeg ruimte voor het creëren van een extra werkplek.

De woning is uitgevoerd met dak-, vloer- en muurisolatie en rondom met isolatieglas. De cv-ketel is in 2020 nog vernieuwd.

Aan de achtergevel zijn diverse rolluiken en een zonnescherm geplaatst.

De achtertuin ligt op het zuidwesten en is netjes aangelegd en onderhouden. Achterin staat een houten berging.

Al met al een complete (gezins)woning, die zonder grote aanpassingen betrokken kan worden.

De woning ligt op een fijne locatie op loopafstand van openbaar vervoer en het centrum van het dorp. Hier zijn diverse winkels en basisscholen te vinden. Met slechts tien autominuten bevindt men zich op de snelweg A29 of A16 richting Rotterdam en Breda.

Nieuwsgierig?
Maak dan snel een afspraak voor een vrijblijvende bezichtiging met MarQuis makelaars & taxateurs. U bent van harte welkom!

Kadastrale gegevens:
Gemeente Puttershoek, sectie D nummer 1950 groot 126 m²
Volle eigendom
Tuinligging: zuidwest

Maatvoering (indicatief):
Woonoppervlakte : circa 116 m²
Externe bergruimte : circa 6 m²

Bijzonderheden:
Remeha combi ketel 2020
Zonnepanelen 2021
Koelvriescombinatie en oven in 2018 vernieuwd
Vaatwasser in 2021 vernieuwd

Oplevering:
De oplevering kan in overleg plaatsvinden. Een oplevering op korte termijn is bespreekbaar.

Kenmerken

Overdracht

Status
Verkocht
Oplevering
In overleg

Bouw

Woonhuis
Eengezinswoning, Tussenwoning
Soort bouw
Bestaande bouw
Bouwjaar
2005
Onderhoud binnen
Goed
Onderhoud buiten
Goed

Oppervlakten en inhoud

Oppervlakte
116m²
Perceel
126m²
Inhoud
405m³

Indeling

Kamers
4
Slaapkamers
3
Badkamers
1
Verdiepingen
3
Voorzieningen
Mechanische ventilatie, Rolluiken, TV-Kabel, Buitenzonwering, Dakraam, Zonnepanelen

Buitenruimte

Ligging
In woonwijk
Tuin
Achtertuin, Voortuin
Achtertuin
Zuid, 50m², 500×1000cm
Schuur
Vrijstaand hout

Energie

Energielabel
A
Isolatie
Volledig geisoleerd
Warm water
C.V.-ketel
Verwarming
C.V.-ketel
Ketel
Remeha CW4 (2020, Combi-ketel, Eigendom)

Garage

Locatie

[ { "address": "Waterkers 8", "zipCode": "3297 WS", "city": "Puttershoek" } ]