Lijsterbesstraat 38  Zuid-Beijerland

Verkocht

Omschrijving

Instapklare, hippe (gezins)woning met veel ruimte en een leuke tuin met berging. Ligging in een rustige woonwijk, aan de achterkant grenzend aan een brede groenstrook.

Deze in 1971 gebouwde woning staat op 145 m² eigen grond.
In de afgelopen jaren is vrijwel het hele huis verbouwd, waarbij onder andere keuken, badkamer, toilet, dak, vloeren en wanden zijn aangepakt. Ook aan de buitenkant is zorg besteed. Het schilderwerk is uitgevoerd in een moderne kleur. De aanbouw aan de achterkant en de berging zijn gepotdekseld, wat zorgt voor een stoere uitstraling.

Wie op zoek is naar een groot huis en geen zin of tijd heeft om flink te klussen, vindt hier een instapklaar huis. Alle gordijnen, rolgordijnen, jaloezieën en horren blijven achter.

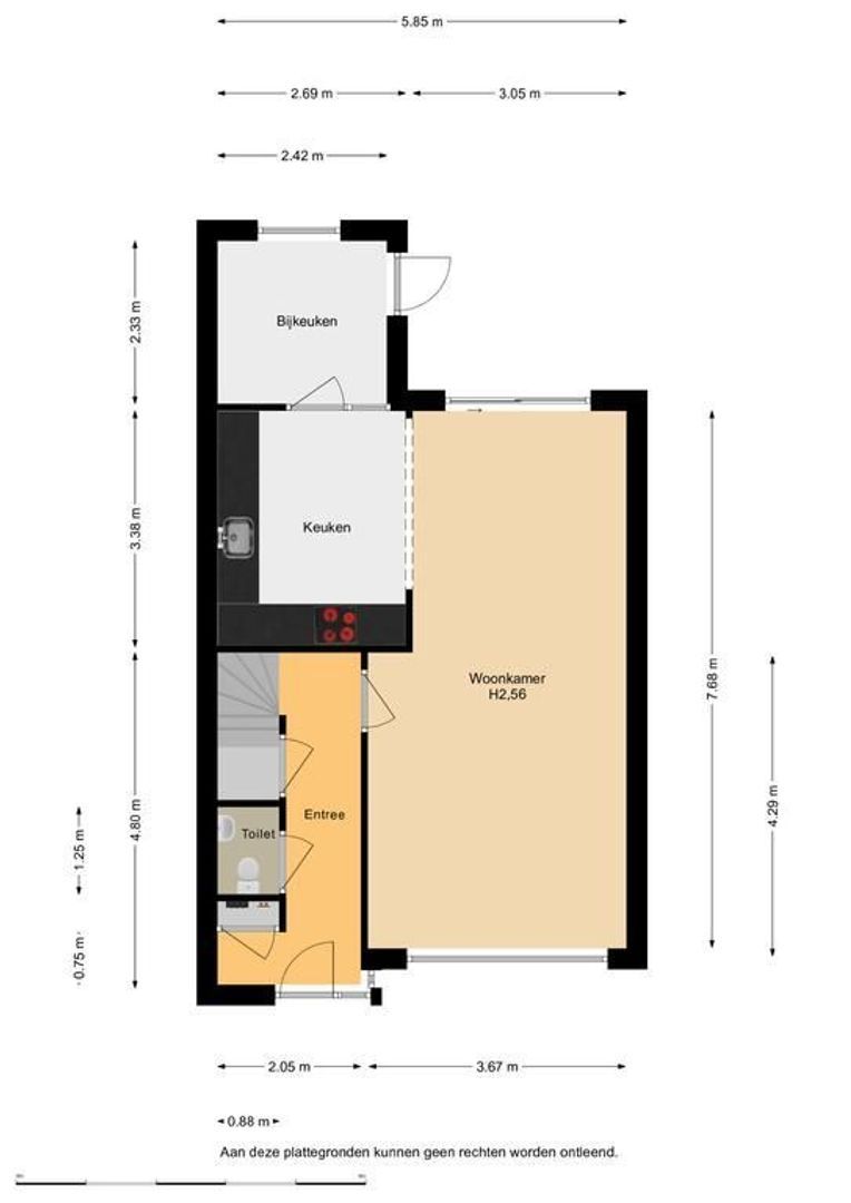
De indeling is als volgt: entree, hal met moderne meterkast, trapopgang en toiletruimte met wandcloset en fonteinbakje.
Grote lichte leefruimte, bestaande uit zitgedeelte aan de straatkant, eetgedeelte met schuifpui naar de tuin en open keuken. Deze is opgesteld in een L-vorm en uitgevoerd met een granieten aanrechtblad, een inductiekookplaat, koel-vriescombinatie, vaatwasser, oven, afzuigkap. De handige Quooker kan desgewenst worden overgenomen.

Achter de keuken bevindt zich een praktische bijkeuken, met onder andere plaats voor de wasapparatuur en een deur naar de tuin.
De begane grondvloer is afgewerkt met een eigentijdse pvc-vloer met daaronder comfortabele vloerverwarming.

Op de eerste verdieping zijn drie slaapkamers en een mooie badkamer. Deze is voorzien van een grote doucheruimte, een wastafelmeubel, een spiegel met verwarming en een tweede toilet (hangend). Dankzij het raam is er daglicht en kan geventileerd worden met frisse lucht.

Ook op de tweede verdieping is verrassend veel ruimte, mede vanwege de dakkapel. Een overloop geeft toegang tot een berging (inclusief cv-ketel) en een grote vierde slaapkamer.

Zowel de voor- als de achtertuin zijn opnieuw ingericht met onder andere groot formaat tegels. Het geheel ziet er strak en modern uit. Achterin de tuin staat de berging (steen met gepotdekselde delen).

Al met al een ontzettend leuk huis, dat in overleg beschikbaar is.

Nieuwsgierig?
Maak dan snel een afspraak voor een vrijblijvende bezichtiging met MarQuis makelaars & taxateurs. U bent van harte welkom!

Kadastrale gegevens:
Gemeente Zuid-Beijerland, sectie C nummer 2158 groot 145 m²
Tuinligging: west

Maatvoering (indicatief):
Gebruiksoppervlakte wonen : circa 121 m²
Gebruiksopp. berging : circa 7 m²

Bijzonderheden:
Kunststof ramen met dubbelglas (behalve de bijkeuken)
Nefit combi ketel 2021
Schuifpui in achtergevel wordt nog vervangen voor rekening van verkoper
Nieuwe dakpannen in 2020 (voorzijde oude constructie behouden, panlatten, folie en pannen vernieuwd), dakisolatie, plafondisolatie
Uitgebreide groepenkast, elektra vernieuwd, bedrading vervangen, WCD’s vervangen
Keuken zonder warmwaterleiding (dus Quooker of boiler noodzakelijk)
Kozijnen m.u.v. bijkeuken en woonkamer voorkant vernieuwd
Betonlatei voorzijde gerepareerd
Dakgoten voor- en achterzijde volledig vernieuwd

Oplevering:
De oplevering vindt bij voorkeur plaats begin november 2022.

Kenmerken

Overdracht

Status
Verkocht
Oplevering
In overleg

Bouw

Woonhuis
Eengezinswoning, Tussenwoning
Soort bouw
Bestaande bouw
Bouwjaar
1971
Onderhoud binnen
Goed
Onderhoud buiten
Goed

Oppervlakten en inhoud

Oppervlakte
121m²
Perceel
145m²
Inhoud
400m³

Indeling

Kamers
5
Slaapkamers
4
Badkamers
1
Verdiepingen
3
Voorzieningen
Buitenzonwering, Schuifpui

Buitenruimte

Ligging
Aan rustige weg, In woonwijk
Tuin
Achtertuin, Voortuin
Achtertuin
West, 63m², 600×1050cm
Schuur
Vrijstaand steen

Energie

Energielabel
C
Isolatie
Dakisolatie, Dubbel glas
Warm water
C.V.-ketel
Verwarming
C.V.-ketel, Vloerverwarming gedeeltelijk
Ketel
Neit (2021, Combi-ketel, Eigendom)

Garage

Locatie

[ { "address": "Lijsterbesstraat 38", "zipCode": "3284 XM", "city": "Zuid-Beijerland" } ]