Lijsterbesstraat 7  Zuid-Beijerland

Verkocht

Omschrijving

Goed onderhouden ruime hoekwoning met garage met oprit en nette tuin op het zuiden. Ligging aan een autoluwe straat in een kindvriendelijke woonwijk. De dorpse voorzieningen zoals winkels, scholen en sportfaciliteiten zijn op loopafstand beschikbaar, maar ook de uitgestrekte natuur ligt op steenworp afstand.

De woning is gebouwd omstreeks 1971 en staat op een ruim perceel van 200 m² eigen grond.
Sinds 2001 is aan de woning veel verbouwd en verbeterd, zo zijn onder andere alle buitendeuren, kozijnen en ramen uitgevoerd in kunststof en is de gehele elektrische installatie vernieuwd.

De extra ruimtes zoals de (inpandige) garage, de bijkeuken en de oprit bij de woning maken de woning geschikt voor zowel starters als voor doorstromers.

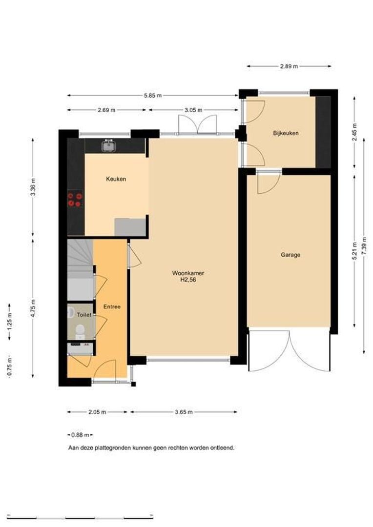
De indeling op de begane grond is als volgt: entree/hal met meterkast, trapopgang naar de eerste verdieping en toiletruimte met wandcloset (hangend) en fonteinbakje.

Grote, lichte en tuingerichte leefruimte, bestaande uit een zitgedeelte aan de straatkant, het eetgedeelte met openslaande deuren naar de tuin en een open keuken. Deze fraaie keuken uit 2014 is opgesteld in een U-vorm en is uitgevoerd met een composiet aanrechtblad, rvs afzuigkap, vaatwasser, koel/vriescombinatie, oven en een inductiekookplaat. Het raam van de keuken is aan de buitenkant voorzien van een elektrische zonwering (screen).

Vanuit de woonkamer is de praktische bijkeuken bereikbaar met onder andere plaats voor de was- en droogapparatuur, een eventuele tweede koelkast en/of vrieskast en een deur naar de tuin. Tevens bevindt zich hier de toegang tot de (inpandige) garage.

De begane grondvloer is afgewerkt met een massief eikenvloer en een gestuukt plafond met inbouwspots.

Op de eerste verdieping zijn drie slaapkamers en de badkamer. De ramen van de slaapkamers zijn voorzien van elektrische rolluiken. De badkamer is ingericht met een ligbad, tweede toilet (hangend), een handdoekradiator en een wastafelmeubel. Dankzij het raam met ventilatierooster is er daglicht en kan geventileerd worden met frisse lucht.

Op de tweede verdieping -bereikbaar via een vaste trap- treft u de voorzolder. Deze geeft toegang tot meerdere bergingen (inclusief cv-ketel) en een vierde slaapkamer. De grote vierde slaapkamer biedt verrassend veel (berg)ruimte, mede vanwege een dakkapel met rolluik.

De op het zuiden gelegen tuin is heerlijk zonnig en heeft veel privacy. Achterin de tuin staat de stenen berging met elektra en verlichting. Aan de achterkant van de bijkeuken is een overkapping geplaatst, zodat er al snel buiten gezeten kan worden. Ook ’s avonds, doordat deze is voorzien met verlichting en elektra. Op de oprit is ruim voldoende plaats voor het parkeren van uw auto op eigen terrein.

Nieuwsgierig?
Maak dan snel een afspraak voor een vrijblijvende bezichtiging met MarQuis makelaars & taxateurs. U bent van harte welkom!

Kadastrale gegevens:
Gemeente Zuid-Beijerland, sectie C nummer 2167 groot 200 m²
Tuinligging: zuid

Maatvoering (indicatief):
Gebruiksoppervlakte wonen : circa 123 m²
Gebruiksoppervlakte berging : circa 7 m²
Gebruiksopp. overige inpandig: circa 15 m²

Bijzonderheden:
Kunststof ramen met dubbelglas (2006)
Itho HR cv-combi ketel 2006 (onderhoud aug. 2022)
Buitenschilderwerk: deels 2022 uitgevoerd
Diverse elektrische rolluiken en screens
Meterkast: 12 groepen, 4 aardlekschakelaars en 1 hoofdschakelaar

Oplevering:
De oplevering vindt bij voorkeur plaats vanaf mei 2023.

Kenmerken

Overdracht

Status
Verkocht
Oplevering
Per direct

Bouw

Woonhuis
Eengezinswoning, Hoekwoning
Soort bouw
Bestaande bouw
Bouwjaar
1971
Onderhoud binnen
Goed
Onderhoud buiten
Goed

Oppervlakten en inhoud

Oppervlakte
123m²
Perceel
200m²
Overig
15m²
Inhoud
455m³

Indeling

Kamers
5
Slaapkamers
4
Badkamers
1
Verdiepingen
3
Voorzieningen
Rolluiken, TV-Kabel, Buitenzonwering

Buitenruimte

Tuin
Achtertuin, Voortuin
Achtertuin
Zuid, 77m², 900×850cm
Schuur
Vrijstaand steen

Energie

Energielabel
D
Isolatie
Dubbel glas
Warm water
C.V.-ketel
Verwarming
C.V.-ketel
Ketel
Itho (2007, Combi-ketel, Eigendom)

Garage

Soort garage
Aangebouwd steen, Parkeerplaats
Capaciteit
1

Locatie

[ { "address": "Lijsterbesstraat 7", "zipCode": "3284 XM", "city": "Zuid-Beijerland" } ]