Tiengemeten 21 27  Zuid-Beijerland

€ 975 p.m. ex.

Omschrijving

***INSCHRIJVEN VOOR DEZE TWEE WONINGEN IS NIET MEER MOGELIJK. DE INSCHRIJFTERMIJN IS VERLOPEN***

VERHUUR OP BASIS VAN INSCHRIJVING – TWEE WONINGEN OP HET EILAND TIENGEMETEN

BEZICHTIGINGEN ZIJN PAS MOGELIJK IN FEBRUARI 2022 OP UITNODIGING VAN DE MAKELAAR

Het eiland Tiengemeten is sinds 1997 eigendom van Natuurmonumenten; een prachtig natuurgebied van circa 1.000 ha groot. Het eiland is alleen te bereiken met de veerpont die gaat vanaf de kade van Zuid-Beijerland (Nieuwendijk). Deze vertrekt dagelijks vanaf 10.00 uur tot 17.00 uur; in het hoogseizoen op vrijdag tot en met zondag tot 19.00 uur. Bewoners kunnen te voet kosteloos gebruik maken van de veerdienst.

Op het natuureiland gaan landschap, ecologie, erfgoed en publieksontvangst hand in hand. Het eiland trekt jaarlijks zo’n 50.000 bezoekers. Natuurliefhebbers, wandelaars en vogelaars kunnen hier hun hart ophalen. Ook zijn er een bezoekerscentrum, twee musea (landbouw en Rien Poortvliet), speelnatuur van OERRR, diverse (vakantie)woningen en een zorgboerderij. Horeca is in beperkte mate aanwezig en niet het gehele jaar geopend.

Namens Natuurmonumenten bieden wij twee huurwoningen voor permanente bewoning aan. Voor deze unieke locatie zijn wij op zoek naar diegenen die onder andere een ambassadeursrol voor het eiland kunnen vervullen, zich aangesproken voelen tot goed nabuurschap, uiteraard houden van natuur en ook de vele bezoekers van het eiland een warm hart toedragen.
Eén van de unieke kenmerken van het eiland is de isolatie. Ook dit zal de huurders tot de verbeelding moeten spreken. Immers, zodra de laatste pont wegvaart ben je op jezelf aangewezen.

De woningen zijn recent intern gerenoveerd, gemoderniseerd en verduurzaamd. Van binnen zien de woningen er strak en eigentijds uit. De buitenkant is nog grotendeels authentiek en daarmee is de karakteristieke uitstraling behouden gebleven.

Globale omschrijving van de vrijstaande woning op Tiengemeten 21
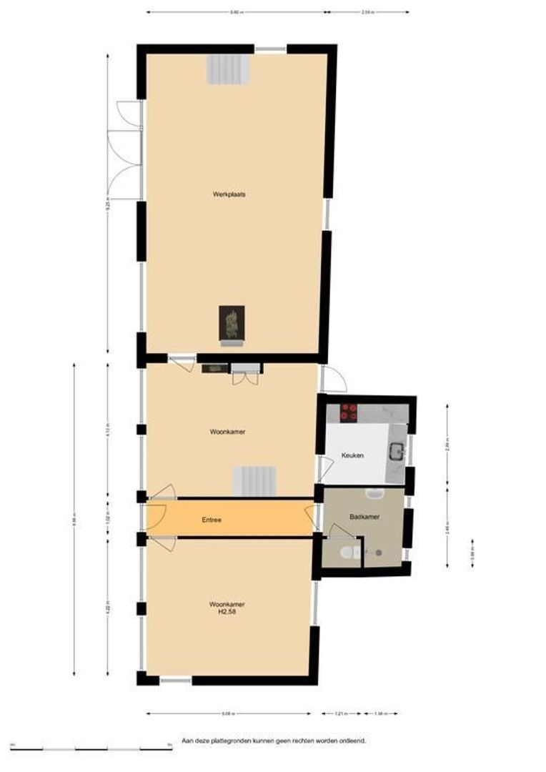
Dit is een vrijstaande woning met een inpandige werkplaats/schuur (voormalige smederij) die is gebouwd in 1922. De gebruiksoppervlakte wonen bedraagt circa 81 m², exclusief gebruiksoppervlakte schuur circa 52 m².

Op de begane grond is een woonkamer, eetkamer met halfopen keuken, badkamer en apart toilet. De verdieping is met een vaste trap te bereiken; hier zijn twee mooie slaapkamers.
De schuur is bereikbaar vanuit de eetkamer.

De keuken en sanitaire voorzieningen zijn recent vernieuwd. Ook is een nieuwe lucht-water warmtepomp met boiler en een WTW geïnstalleerd. Verwarming vindt plaats door middel van vloerverwarming en elektrische verwarming. In zowel de woon- als eetkamer is een rookafvoerkanaal aanwezig, geschikt om een pelletkachel op aan te sluiten.

Rondom de woning ligt een grote tuin met een open structuur.

Huurprijsindicatie € 975,- per maand.
Norminkomen is minimaal 4x de huurprijs als bruto maandsalaris.


Globale omschrijving van de twee-onder-een-kapwoning op Tiengemeten 27
De twee-onder-een-kapwoning Tiengemeten 27 is gebouwd na de watersnood van 1953.
De gebruiksoppervlakte wonen bedraagt circa 65 m² exclusief de serre van circa 6 m².
De gebruiksoppervlakte schuur bedraagt circa 19 m².

Op de begane grond is de hal met toiletruimte en trapopgang, een ruime keuken met toegang tot een serre en een gezellige woonkamer. Op de verdieping zijn drie slaapkamers en de badkamer. Deze is ingericht met een doucheruimte, tweede toilet en vaste wastafel.

De keuken en sanitaire voorzieningen zijn recent vernieuwd en voldoen aan de hedendaagse wensen en eisen. De woning wordt verwarmd door een elektrische cv-ketel en een zuinige elektrische boiler zorgt voor warm water. In de woonkamer is een rookafvoerkanaal aanwezig, geschikt om een pelletkachel op aan te sluiten. Muren, dak en verdiepingsvloer zijn geïsoleerd en de buitenramen zijn voorzien van dubbel glas.

In de tuin staan twee bergingen, een stenen en een houten.

Huurprijsindicatie € 825,- per maand.
Norminkomen is minimaal 4x de huurprijs als bruto maandsalaris.

Verhuurprocedure
Het is voor Natuurmonumenten belangrijk om de woningen te gunnen aan de meest geschikte kandidaten. Bij interesse wordt u verzocht het aanmeldingsformulier in te vullen; deze is beschikbaar via de website van MarQuis makelaars (www.marquis.nl) en via Funda. Het aanmeldingsformulier inclusief de gevraagde bijlage kunt u tot 25 januari 2022 12.00 uur mailen naar MarQuis makelaars marquis@marquis.nl.

Vervolgens is het op dinsdag 8 en donderdag 10 februari 2022 mogelijk om de woningen op afspraak en onder begeleiding van de makelaar te bezichtigen. Wij nemen hier naar aanleiding van uw aanmelding contact met u over op.

Na de kijkdagen kunt u zich inschrijven middels het inschrijfformulier. Op het formulier dient te worden aangegeven welke huursom u wilt betalen. Een uitgebreide, schriftelijke motivatie waarom u op het eiland wilt komen wonen, maakt ook onderdeel uit van de inschrijving. Belangstellenden kunnen tot 17 februari 2022 het inschrijfformulier inclusief de gevraagde bijlagen mailen naar MarQuis makelaars via marquis@marquis.nl.

In overleg met Natuurmonumenten worden een aantal inschrijvers geselecteerd en uitgenodigd om kennis te maken met Natuurmonumenten. Een positieve uitkomst van de kredietcheck is vereist. Vervolgens vindt de gunning plaats en wordt de huurovereenkomst opgemaakt en getekend. De voorgenomen ingangsdatum van de huurovereenkomst is maart/april 2022.

Kenmerken

Overdracht

Huurprijs
€ 975 p.m. ex.
Status
Verhuurd
Oplevering
Per direct

Bouw

Woonhuis
Eengezinswoning, Vrijstaande woning
Soort bouw
Bestaande bouw
Bouwjaar
1922
Onderhoud binnen
Goed
Onderhoud buiten
Goed

Oppervlakten en inhoud

Oppervlakte
81m²
Perceel
1.325m²
Overig
95m²
Inhoud
500m³

Indeling

Kamers
4
Slaapkamers
1
Badkamers
1
Verdiepingen
2
Voorzieningen
Rookkanaal

Buitenruimte

Ligging
Aan rustige weg, Open ligging, Landelijk gelegen
Tuin
Tuin rondom
Schuur
Aangebouwd steen

Energie

Isolatie
Dubbel glas
Warm water
Elektrische boiler eigendom
Verwarming
Vloerverwarming gedeeltelijk, Elektrische verwarming

Locatie

[ { "address": "Tiengemeten 21", "zipCode": "3284 BE", "city": "Zuid-Beijerland" } ]

Interesse? Vraag hier een bezichtiging aan.

Deze woning is Verhuurd

Uw bericht is naar ons verzonden. Wij nemen zo snel mogelijk contact met u op.

Er is iets mis gegaan met het versturen van het formulier.
Controleer of u alle velden (goed) heeft ingevoerd en probeer het nog een keer.


Heeft u een vraag?

Wij zijn maandag t/m vrijdag bereikbaar van 9:00 tot 17:15 uur

Bel 078 673 7244